$85,000
 
 
Lot 5 Basin Road, Evanston, Nova Scotia, B0E1J0
MLS® Number: 202422890

Vacant Land for Sale in Lot Basin Road Evanston

Property Information

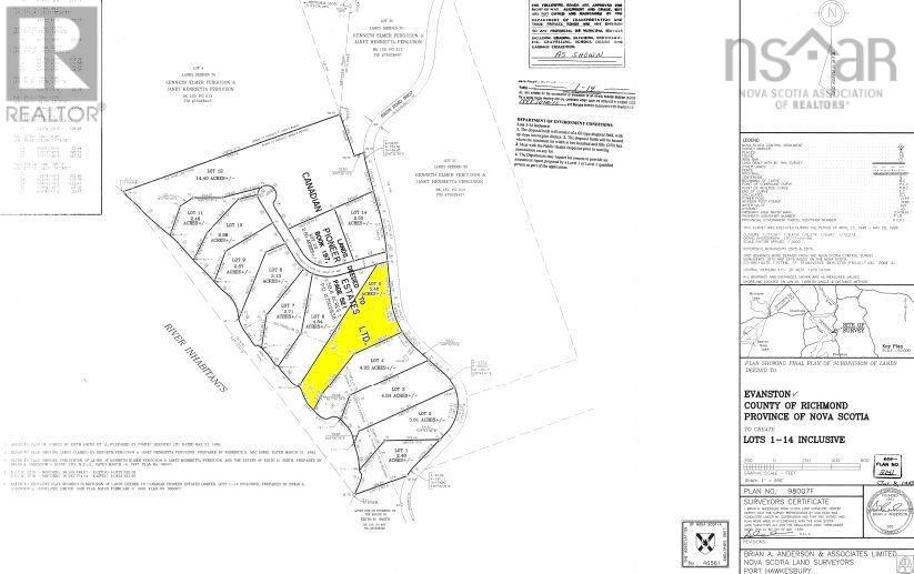
In one of Nova Scotia's most popular regions, you will find this beautiful 5.46 Acre riverfront lot (Lot 5), right on the River Inhabitants. The property, which can be used all year round, is accessed via a public road and slopes gently south-west from the road to the shore. Electricity and telephone are located directly in front of the property. High-speed internet is possible in this area without any problems. St. Peters and Port Hawkesbury with their supermarkets and various shops, schools, doctors, banks and restaurants can be reached in around 15 minutes. It is also only a quarter of an hour's drive to play golf at the Dundee Golf Club in West Bay. The world-famous Cabot Trail is around 1.5 hours' drive away and Halifax International Airport is just over two and a half hours away by car on well-developed highways. (id:50315)

Property Summary
Property Type

Vacant Land

Building Type

Storey

Community Name

Subdivision Name

Title

 

Land Size
 
Built in
Annual Property Taxes
$
Parking Type
None
Published
452 days
Building
Bedrooms
Total
Below Grade
 
Bathrooms
Total
Partial
Interior Features
Appliances Included

Flooring

Basement Features

Basement Type

Building Features
Features

Treed

Foundation Type

Architectural Style

Construction Material

Floor Space
.00
Total Finished Area
.00
Structures
Heating & Cooling
Cooling
Fireplace
Heating Type
Exterior Features
Exterior Finish
Neighbourhood Features
Amenities Nearby
 
 
Parking Type
None
Total Parking Spaces
Interested in this property?
Kuldip Singh Parmar
Kuldip Singh Parmar
Associate
Balpreet Tehri
Balpreet Tehri
Associate
Have a question or just want to learn a bit more about the property? That's what I'm here for! Would you like me to send you more information.
By using our site, you agree to our Terms of use and Privacy Policy     Dismiss