$279,800
3 beds 3 baths
 
9447 156 ST NW, Edmonton, Alberta, T5R1Z5
MLS® Number: E4460884

Single Family House for Sale in ST NW Edmonton

Property Information

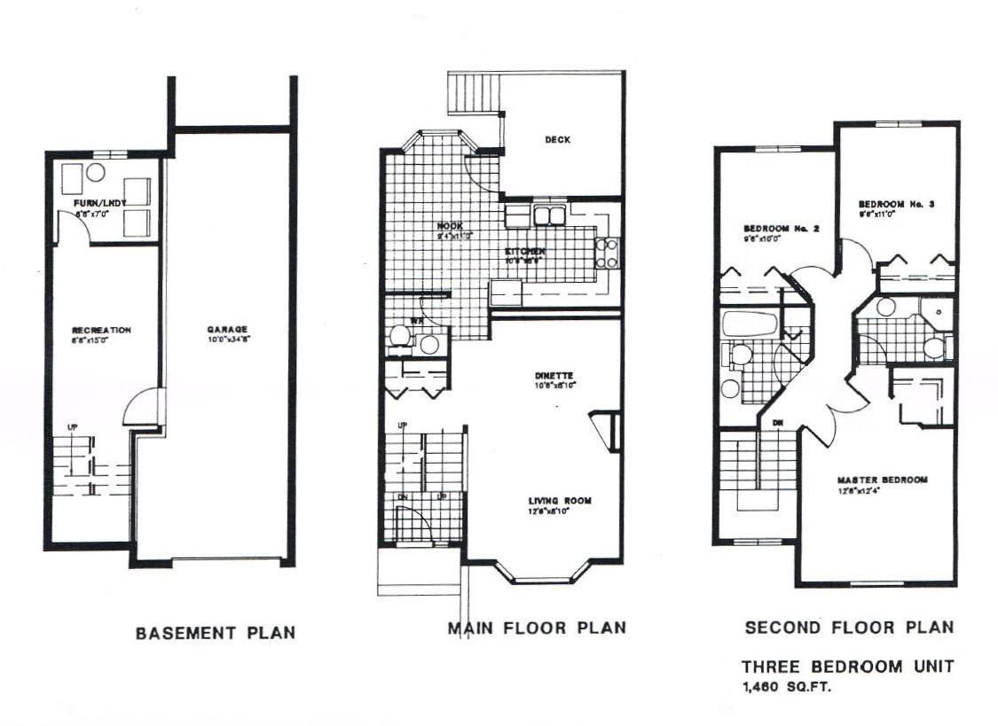
TOWN HOME CONDO Located in the right between Downtown Edmonton and West Edmonton Mall just MINUTES FROM THE RIVER VALLEY and tails, 2 min walk to the NEW LRT STATION that is currently under construction. END UNIT is this small condo project with extra side yard space. STONE DETAILS AND LAMINATE FLOORING throughout the main level with a GAS FIREPLACE AND BAY WINDOW in the living room and Formal dining room adjacent. Kitchen is FILLED WITH NATURAL LIGHT. Lots of cabinets and storage with ROOM TO WORK plus a window over the sink. Spacious Dinette with Garden door to SOUTH FACING DECK that was set up for pets. Upstairs to PRIMARY SUITE FIT FOR A KING with a walk in closet and full ensuite including SHOWER WITH BODY SPRAYS. Bedrooms 2 and 3 are similar in size with a full bathroom adjacent. BASEMENT IS FINISHED with rec room and more storage. Laundry is next to the update furnace and HWT. DOUBLE DEEP GARAGE is 35’ long with extra width near the front. NEW WINDOWS throughout plus a FLEXIBLE POSSESSION! (id:50315)

Property Summary
Property Type

Single Family

Building Type

Storey

2

Community Name

Subdivision Name

Title

 

Land Size
 
Built in
1993
Annual Property Taxes
$
Parking Type
Attached Garage
Published
24 days
Building
Bedrooms
Total
3
Below Grade
 
Bathrooms
Total
3
Partial
1
Interior Features
Appliances Included

Washer, Refrigerator, Central Vacuum, Dishwasher, Stove, Dryer, Window Coverings, Garage door opener

Flooring

Basement Features

Finished, Full

Basement Type

Finished, Full

Building Features
Features

See remarks, Flat site, Lane, Closet Organizers

Foundation Type

Architectural Style

Construction Material

Floor Space
.00
Total Finished Area
.00
Structures
Heating & Cooling
Cooling
Central air conditioning
Fireplace
Gas, Unknown
Heating Type
Forced air
Exterior Features
Exterior Finish
Neighbourhood Features
Amenities Nearby
 
 
Parking Type
Attached Garage
Total Parking Spaces
3
Interested in this property?
Kuldip Singh Parmar
Kuldip Singh Parmar
Associate
Balpreet Tehri
Balpreet Tehri
Associate
Have a question or just want to learn a bit more about the property? That's what I'm here for! Would you like me to send you more information.
By using our site, you agree to our Terms of use and Privacy Policy     Dismiss