$619,900
2 beds 3 baths
1315 Sq.Ft.
707 Sovereign Common SW, Shaganappi, Calgary, Alberta, T3C3Y3
MLS® Number: A2232784

Single Family House for Sale in Sovereign Common SW Shaganappi Calgary

Property Information

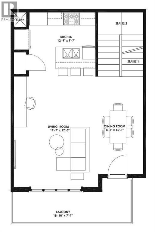
Move in before the end of the year! Current Promotion Offered: 2 years of FREE condo fees + complementary central air conditioning, allowing you to enjoy comfortable maintenance-free living from day one! Welcome to Crown Park, located just 5 minutes from downtown, Calgary’s newest inner-city community, blends striking architectural design with modern elegance. Set on 13 acres of exquisite green spaces, the rolling landscape of the site has influenced the design of these park-side properties, offering panoramic views of the downtown skyline. The 'Manhattan' is a thoughtfully designed 3-storey city townhome offering an open-concept floor plan with all the luxuries you could desire in your next home. With over 1,300 square feet of developed space, this home features 2 bedrooms, 2.5 bathrooms, generous living areas, and an oversized private attached garage. The contemporary design centers the living room between the kitchen and dining area, creating the perfect space for entertaining guests. The home also boasts 9-foot ceilings on the main level, providing a bright and inviting atmosphere throughout the day. The gourmet kitchen is upgraded with full-height soft-close cabinetry to the ceiling, stone countertops, and a suite of stainless-steel appliances, including an electric cooktop, chimney hood fan, and a built-in microwave & oven. The homes are designed back-to-back to maximize space, creating an expansive main living area with a wall of windows and access to a private balcony with picturesque views of the surrounding landscape. The upper level features a primary bedroom with its own en suite, complete with a walk-in shower and walk-through wardrobe. A second generously sized bedroom, an additional full bathroom, and convenient upper-level laundry add to the home's appeal. The nearly 19'x7' balcony is the perfect outdoor living space complete with BBQ gas-line and A/C rough-in and the oversized attached garage is the perfect space to keep your vehicle and valuables s afe all year long. Crown Park is one of the city's most coveted developments due to its prominent location near the golf course, walkability to transit, and easy access to downtown's countless amenities. This property is perfect for those who enjoy proximity to walking trails along the Bow River, dog-friendly parks, and local hot spots for dining and entertainment. The home comes complete with an extended 3-year workmanship warranty, moving concierge, and complimentary legal fees, offering peace of mind and an easy transition into your new home. Please note: Photos are from a previous property and may not exactly represent the property for sale. (id:50315)

Property Summary
Property Type

Single Family

Building Type

Storey

3

Community Name

Golf Course Development, Pets Allowed, Pets Allowed With Restrictions

Subdivision Name

Shaganappi

Title

 

Land Size
1315Sq.Ft.
Built in
2025
Annual Property Taxes
$0
Parking Type
Attached Garage
Published
129 days
Building
Bedrooms
Total
2
Below Grade
 
Bathrooms
Total
3
Partial
1
Interior Features
Appliances Included

Washer, Refrigerator, Cooktop - Electric, Dishwasher, Dryer, Microwave, Oven - Built-In, Hood Fan

Flooring

Tile, Carpeted, Vinyl

Basement Features

None

Basement Type

None

Building Features
Features

Back lane, PVC window, No Animal Home, No Smoking Home, Gas BBQ Hookup, Parking

Foundation Type

Poured Concrete

Architectural Style

Construction Material

Wood frame

Floor Space
1315.00Sq.Ft.
Total Finished Area
1315.00Sq.Ft.
Structures
Heating & Cooling
Cooling
Central air conditioning
Fireplace
Heating Type
Forced air
Exterior Features
Exterior Finish
Neighbourhood Features
Amenities Nearby
 
 
Parking Type
Attached Garage
Total Parking Spaces
1
Interested in this property?
Kuldip Singh Parmar
Kuldip Singh Parmar
Associate
Balpreet Tehri
Balpreet Tehri
Associate
Have a question or just want to learn a bit more about the property? That's what I'm here for! Would you like me to send you more information.
By using our site, you agree to our Terms of use and Privacy Policy     Dismiss