$589,900
3 beds 3 baths
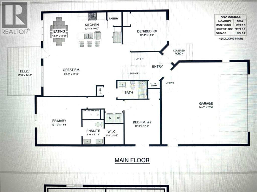
1376 Sq.Ft.
5737 55 Avenue, Victoria Park, Camrose, Alberta, T4V5B9
MLS® Number: A2216967

Single Family House Bungalow for Sale in Avenue Victoria Park Camrose

Property Information

Imagine… The Prairie Series- a brand-new 1,343 sq ft home where you choose the flooring, cabinets, countertops and more! Located in Stoney Creek Estates, this IPEC Home offers a modern open-concept layout with tons of natural light and a spacious kitchen-dining-great room combo – perfect for entertaining or relaxing. Enjoy a Master Suite with dual sink, walk-in closet and separate water closet. With 3 bedrooms and 2 bathrooms there is space for everyone. This IPEC Home is built with their standard triple pane, Low E Argon windows, 9 foot ceilings on the main floor AND DOWNSTAIRS, 36 inch upper kitchen cabinets with quartz counters. Stoney Creek Estates is the newest community in town and the Beaumont Cottage model is truly “Country Living in the City”. Simply put, you get the pride and detail IPEC Homes has as a result of decades of listening to customers and forging relationships through the planning and construction of your new home. IPEC Homes doesn’t just build homes – they build Master Planned Communities that feel like family because the homes is similar (elevations, colour palettes, driveways) but not the same. They build relationships that last after construction is finished to ensure continued comfort and pride of ownership exists. (id:50315)

Property Summary
Property Type

Single Family

Building Type

Bungalow

Storey

1

Community Name

Golf Course Development

Subdivision Name

Victoria Park

Title

 

Land Size
1376Sq.Ft.
Built in
2025
Annual Property Taxes
$5000
Parking Type
Attached Garage
Published
290 days
Building
Bedrooms
Total
3
Below Grade
 
Bathrooms
Total
3
Partial
1
Interior Features
Appliances Included

None

Flooring

Tile, Carpeted, Vinyl Plank

Basement Features

Unfinished, Full

Basement Type

Unfinished, Full

Building Features
Features

Gas BBQ Hookup

Foundation Type

Poured Concrete

Architectural Style

Bungalow

Construction Material

Poured concrete, Wood frame

Floor Space
1376.00Sq.Ft.
Total Finished Area
1376.00Sq.Ft.
Structures
Concrete
Heating & Cooling
Cooling
None
Fireplace
Heating Type
Forced air, In Floor Heating
Exterior Features
Exterior Finish
Concrete
Neighbourhood Features
Amenities Nearby
 
 
Parking Type
Attached Garage
Total Parking Spaces
4
Interested in this property?
Kuldip Singh Parmar
Kuldip Singh Parmar
Associate
Balpreet Tehri
Balpreet Tehri
Associate
Have a question or just want to learn a bit more about the property? That's what I'm here for! Would you like me to send you more information.
By using our site, you agree to our Terms of use and Privacy Policy     Dismiss