$550,000
4 beds 2 baths
1068 Sq.Ft.
534 Cantrell Drive SW, Canyon Meadows, Calgary, Alberta, T2W2K7
MLS® Number: A2251782

Single Family House Bungalow for Sale in Cantrell Drive SW Canyon Meadows Calgary

Property Information

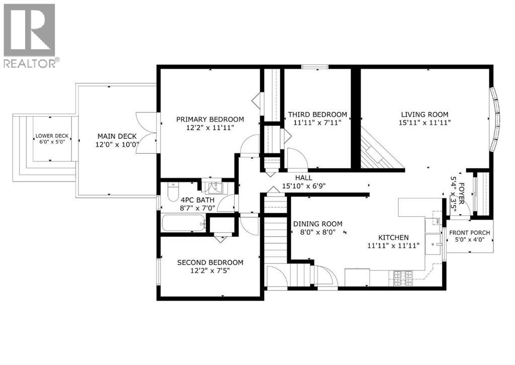
We’re proudly presenting this amazing opportunity in Canyon Meadows! A 4-bedroom, 2-bath beautifully renovated bungalow that offers 2ample space on a huge yard with no neighbours behind. The lot just keeps going at 155’ deep you have the main area, and the property line sprawls to the “back 40” with a private forest-like area to the sound wall. This is a unique lot, and you’d have to see it to believe it. Inside you’ll find a renovated kitchen, granite counters, The commercial grade "Monogram" stainless-steel appliances are GE's high-end brand and they include a gas cooktop and built-in wall oven. Most of the home has seen new LVP flooring, fresh paint, and lighting updates. As well as updated vinyl windows, a high efficient furnace, updated roof and an oversized single detached garage (26’ x 16’). The driveway is long and will accommodate additional parking or even trailer parking if it suits you. Located just steps from the C-train station, schools, shopping, and playgrounds – it’s the perfect blend of convenience and comfort! We’d love to accommodate your showing requests and needs, and we’re really excited to find the next proud owner of this perfect bungalow in Canyon Meadows. (id:50315)

Property Summary
Property Type

Single Family

Building Type

Bungalow

Storey

1

Community Name

Subdivision Name

Canyon Meadows

Title

 

Land Size
1068Sq.Ft.
Built in
1973
Annual Property Taxes
$3408
Parking Type
Detached Garage, RV, Oversize
Published
62 days
Building
Bedrooms
Total
4
Below Grade
 
Bathrooms
Total
2
Partial
0
Interior Features
Appliances Included

Refrigerator, Cooktop - Gas, Dishwasher, Microwave, Oven - Built-In, Hood Fan, Window Coverings

Flooring

Ceramic Tile, Vinyl Plank

Basement Features

Finished, Full

Basement Type

Finished, Full

Building Features
Features

No neighbours behind, No Animal Home, No Smoking Home

Foundation Type

Poured Concrete

Architectural Style

Bungalow

Construction Material

Wood frame

Floor Space
1068.00Sq.Ft.
Total Finished Area
1068.00Sq.Ft.
Structures
Heating & Cooling
Cooling
None
Fireplace
Heating Type
Forced air
Exterior Features
Exterior Finish
Neighbourhood Features
Amenities Nearby
 
 
Parking Type
Detached Garage, RV, Oversize
Total Parking Spaces
4
Interested in this property?
Kuldip Singh Parmar
Kuldip Singh Parmar
Associate
Balpreet Tehri
Balpreet Tehri
Associate
Have a question or just want to learn a bit more about the property? That's what I'm here for! Would you like me to send you more information.
By using our site, you agree to our Terms of use and Privacy Policy     Dismiss