$969,000
3 beds 4 baths
 
50 LACEWOOD CRESCENT, Brampton (Westgate), Ontario, L6S3K4
MLS® Number: W12467284

Single Family House for Sale in LACEWOOD CRESCENT Brampton (Westgate)

Property Information

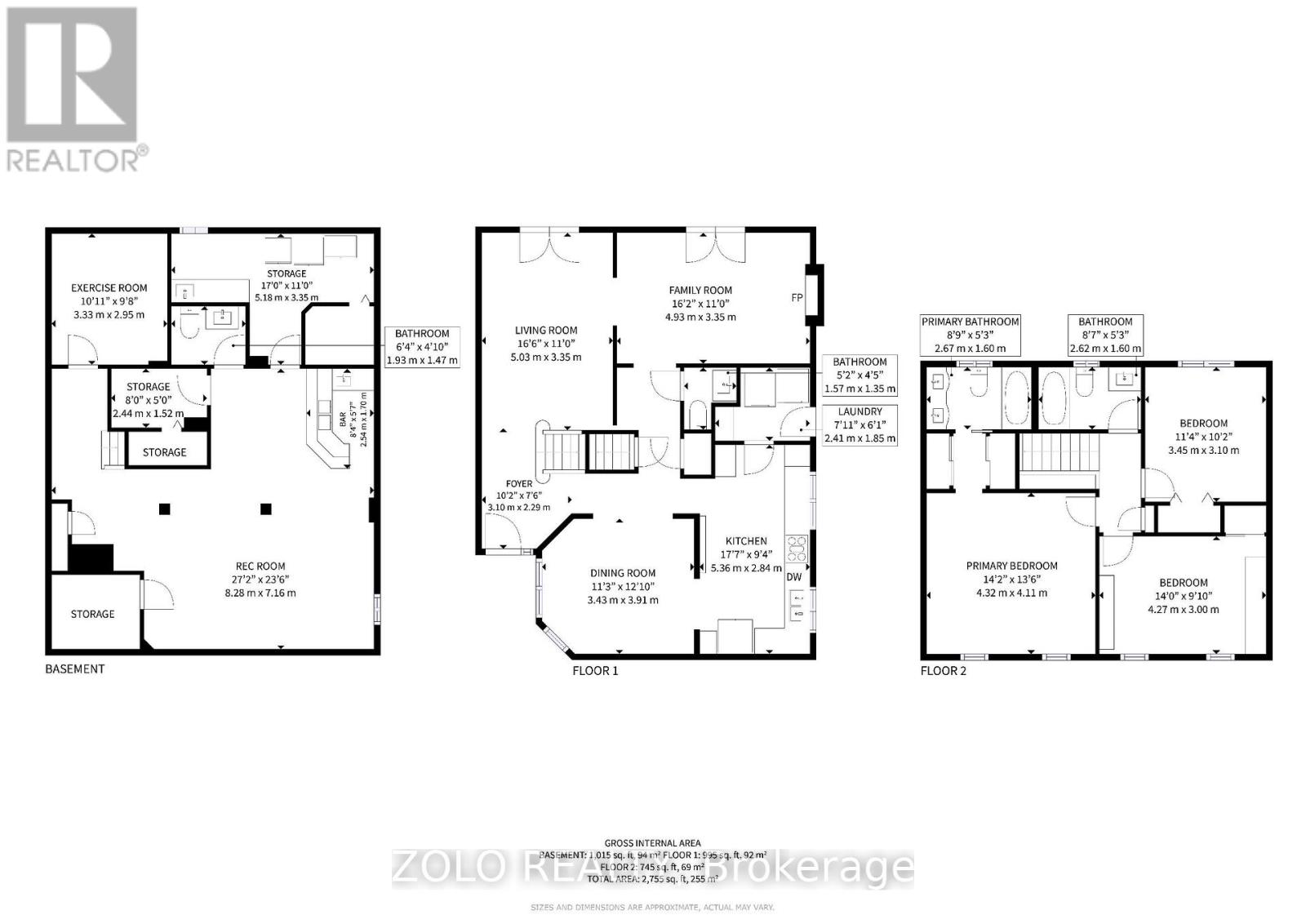
This well-maintained home in the highly sought-after "L" section of Westgate has been cared for by the current owners since 2017. With 3 bedrooms, 4 bathrooms, and versatile living spaces, it combines modern convenience with thoughtful updates. The main floor features a fireplace with sitting area, laundry area with its own door conveniently located near the kitchen, and a formal dining room at the front of the home. Two French doors at the back enhance indoor-outdoor living: one opens to a covered pergola on the deck, while the other provides additional access to the backyard. Upstairs, three spacious bedrooms all feature ceiling fans. The primary bedroom ensuite includes a Jacuzzi jetted tub, stone finishes, heated floors, and a lighted/heated mirror, while the main-floor powder room also features a lighted mirror. Additional bathrooms include a 3-piece upstairs bath and a basement powder room. The finished basement offers a fitness/exercise room, pantry, storage room with sink, and a large multi-purpose entertainment area with wet bar. Most light switches are upgraded to smart, with a smart thermostat, smart outdoor security cameras, a smart garage door, and an automated pet door with one collar fob. Additional highlights include a concrete front walkway, enclosed porch, stainless steel appliances (gas range, built-in dishwasher, fridge), garden shed, washer and dryer, all electric light fixtures, window coverings, in-ground sprinkler system, engineered hardwood flooring on main and second levels, and a natural gas line at the back for BBQ. This home blends smart technology, practical upgrades, and flexible spaces to offer comfort and convenience in one of Brampton's most desirable neighborhoods. (id:50315)

Property Summary
Property Type

Single Family

Building Type

Storey

2

Community Name

Subdivision Name

Title

 

Land Size
 
Built in
Annual Property Taxes
$5462.93
Parking Type
Attached Garage, Garage
Published
17 days
Building
Bedrooms
Total
3
Below Grade
 
Bathrooms
Total
4
Partial
2
Interior Features
Appliances Included

Washer, Refrigerator, Dishwasher, Range, Dryer, Garburator, Window Coverings, Garage door opener remote(s), Water Heater - Tankless, Water Heater

Flooring

Basement Features

Finished, N/A

Basement Type

Finished, N/A

Building Features
Features

Carpet Free

Foundation Type

Poured Concrete

Architectural Style

Construction Material

Floor Space
.00
Total Finished Area
.00
Structures
Brick, Aluminum siding
Heating & Cooling
Cooling
Central air conditioning
Fireplace
Heating Type
Forced air, Natural gas
Exterior Features
Exterior Finish
Brick, Aluminum siding
Neighbourhood Features
Amenities Nearby
 
 
Parking Type
Attached Garage, Garage
Total Parking Spaces
6
Interested in this property?
Kuldip Singh Parmar
Kuldip Singh Parmar
Associate
Balpreet Tehri
Balpreet Tehri
Associate
Have a question or just want to learn a bit more about the property? That's what I'm here for! Would you like me to send you more information.
By using our site, you agree to our Terms of use and Privacy Policy     Dismiss