$3,200,000
 
4330 Sq.Ft.
4832 20 Avenue NW, Montgomery, Calgary, Alberta, T3B0V3
MLS® Number: A2267560

Multi-family House for Sale in Avenue NW Montgomery Calgary

Property Information

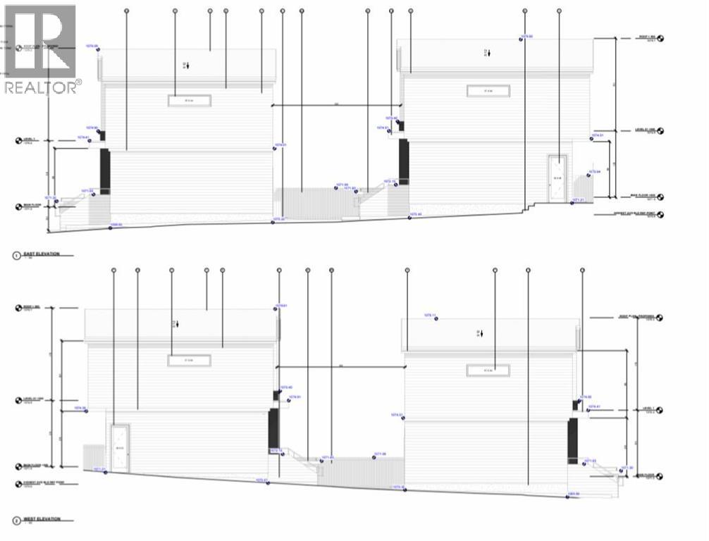
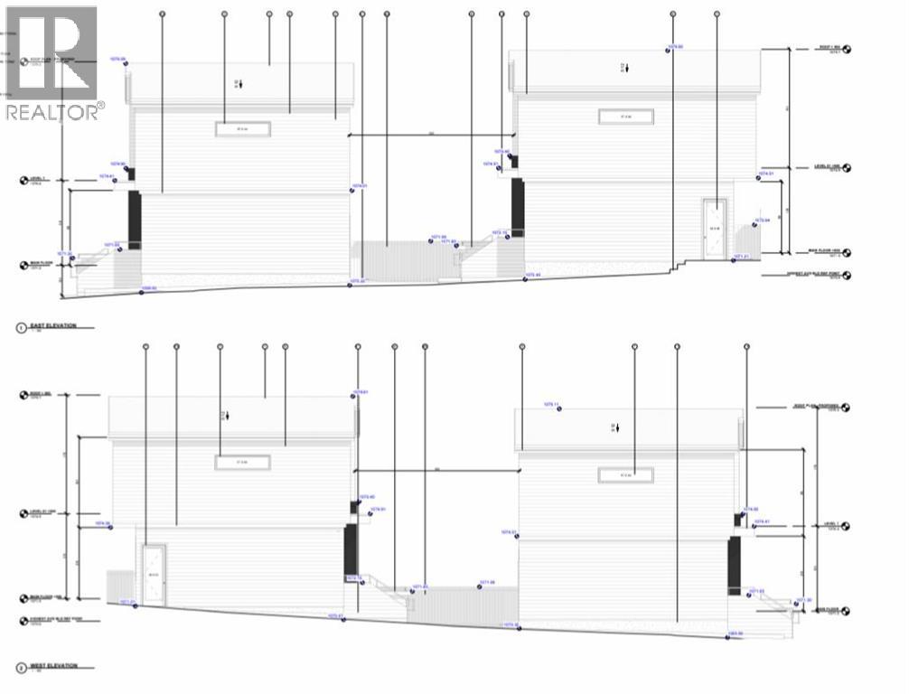
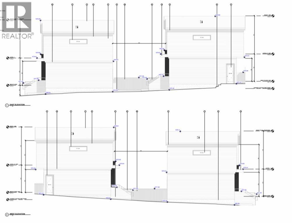
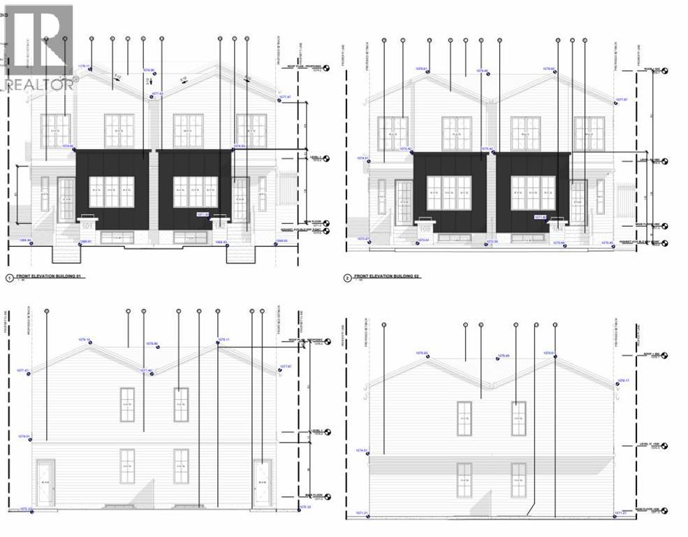
Arriving August 2026 in prime Montgomery, this Modern Courtyard 4-Plex presents a superior 8-unit investment asset comprising four 3-bedroom, 2.5-bathroom upper homes and four 1-bedroom, 1-bathroom legal basement suites complete with full kitchens and in-suite laundry. Purpose-built to qualify for CMHC MLI-Select financing through the Energy Efficiency pathway, this project offers investors favorable terms without the need for rent caps. The innovative duplex-courtyard-duplex layout delivers a quiet, low-density feel with exceptional privacy, abundant natural light, and generous outdoor separation—unique design elements that enhance livability and support higher rental income. Operational management is optimized via a separate mechanical room and full sub-metering, featuring 8 individual gas, water, and electric meters. The exterior includes thoughtfully landscaped outdoor areas designed for functionality and privacy, along with 4 dedicated parking stalls equipped with EV rough-ins. Buyers have the opportunity to customize finishes to preference prior to completion. Located steps from local schools, Shouldice Park, and the Bow River pathways, the property offers fast access to the University of Calgary, Foothills Hospital, and Market Mall, and is under 10 minutes to WinSport and the Trans-Canada Highway for easy mountain getaways, being just 1 hour to Canmore and 1 hour 15 minutes to Banff. (id:50315)

Property Summary
Property Type

Multi-family

Building Type

Storey

2

Community Name

Subdivision Name

Montgomery

Title

 

Land Size
4330Sq.Ft.
Built in
2026
Annual Property Taxes
$0
Parking Type
Published
99 days
Building
Bedrooms
Total
Below Grade
 
Bathrooms
Total
Partial
Interior Features
Appliances Included

Refrigerator, Dishwasher, Stove, Washer & Dryer

Flooring

Basement Features

Basement Type

Building Features
Features

Closet Organizers

Foundation Type

Poured Concrete

Architectural Style

Construction Material

Floor Space
4330.00Sq.Ft.
Total Finished Area
4330.00Sq.Ft.
Structures
Heating & Cooling
Cooling
Fireplace
Heating Type
Exterior Features
Exterior Finish
Neighbourhood Features
Amenities Nearby
 
 
Parking Type
Total Parking Spaces
4
Interested in this property?
Kuldip Singh Parmar
Kuldip Singh Parmar
Associate
Balpreet Tehri
Balpreet Tehri
Associate
Have a question or just want to learn a bit more about the property? That's what I'm here for! Would you like me to send you more information.
By using our site, you agree to our Terms of use and Privacy Policy     Dismiss