$2,914
 
999 Sq.Ft.
4535 Bowness Road NW, Montgomery, Calgary, Alberta, T3B0A9
MLS® Number: A2279660

Business for Sale in Bowness Road NW Montgomery Calgary

Property Information

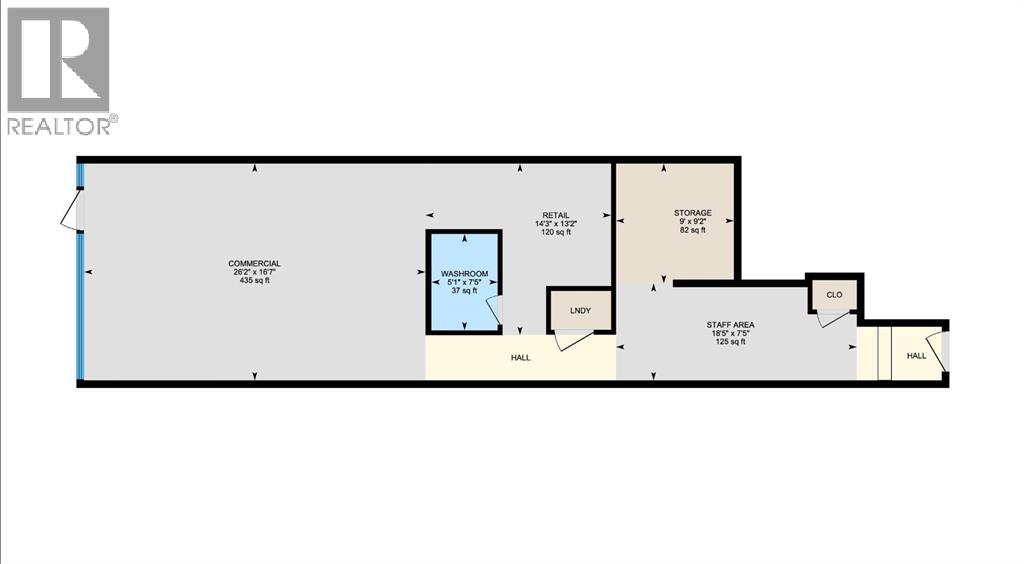
Take advantage of this 999 sq. ft. main-floor retail space in Montgomery Square, a vibrant mixed-use development located at Bowness Road NW and 16 Avenue NW. Designed by Amanda Hamilton, this unit is fully built-out and offers a turnkey retail opportunity. Existing retail fixtures valued at over $100,000 provide a rare chance to step in and begin operations immediately—without the added cost of a full build-out.The space features a welcoming front entrance, excellent storefront visibility with backlit channel signage, one bathroom, a closet, a fully enclosed room, and a kitchen equipped with a microwave, stove, and dishwasher. A washer and dryer are also included. Parking options include ample street parking, as well as one underground stall available under a separate lease for $100 per month.The neighbouring unit is also available for lease (1,200 sq. ft.), and the common wall can be removed to combine both spaces for a total of 2,199 sq. ft.Montgomery Square is part of a growing, pedestrian-friendly community envisioned under the Montgomery Area Redevelopment Plan. The location offers excellent visibility, easy access, and a lively streetscape that attracts both residents and visitors—making it an ideal location to grow your business. (id:50315)

Property Summary
Property Type

Business

Building Type

Storey

Community Name

Subdivision Name

Montgomery

Title

 

Land Size
999Sq.Ft.
Built in
2019
Annual Property Taxes
$
Parking Type
Published
30 days
Building
Bedrooms
Total
Below Grade
 
Bathrooms
Total
Partial
Interior Features
Appliances Included

Flooring

Basement Features

Basement Type

Building Features
Features

Foundation Type

Architectural Style

Construction Material

Floor Space
999.00Sq.Ft.
Total Finished Area
999.00Sq.Ft.
Structures
Heating & Cooling
Cooling
Fireplace
Heating Type
Exterior Features
Exterior Finish
Neighbourhood Features
Amenities Nearby
 
 
Parking Type
Total Parking Spaces
Interested in this property?
Kuldip Singh Parmar
Kuldip Singh Parmar
Associate
Balpreet Tehri
Balpreet Tehri
Associate
Have a question or just want to learn a bit more about the property? That's what I'm here for! Would you like me to send you more information.
By using our site, you agree to our Terms of use and Privacy Policy     Dismiss