$1,249,000
5 beds 4 baths
1960 Sq.Ft.
411 28 Avenue NW, Mount Pleasant, Calgary, Alberta, T2M2K7
MLS® Number: A2286864

Single Family House for Sale in Avenue NW Mount Pleasant Calgary

Property Information

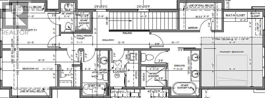
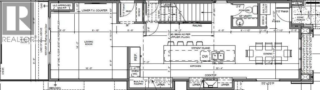
Situated on one of the area’s most charming, family-friendly streets, beautifully lined with mature oak trees, this location delivers the perfect blend of inner-city convenience and neighborhood warmth. Exceptional pre-sale opportunity in the highly sought-after community of Mount Pleasant! Offering over 2,800 sq ft of thoughtfully designed living space, this home features a fully legal basement suite with separate entrance and private laundry — perfect for rental income, mortgage assistance, or multi-generational living. The bright main floor features 11-ft ceilings, wide plank hardwood floors, and a designer kitchen with a dramatic 14-ft waterfall island, quartz countertops, white oak shaker cabinetry, plaster hood fan, premium appliances, and modern gold/black accents. The spacious living room showcases a custom brick gas fireplace and built-ins, while the mudroom offers functional storage.Upstairs offers 9-ft ceilings and a stunning primary retreat with HUGE vaulted ceilings, and a spa-inspired 5-piece ensuite with in-floor heat and steam shower rough-in. Two additional bedrooms with walk-in closets and a full laundry room complete the level.The legal basement suite includes a full kitchen, living area, 2 bedrooms, bath, and separate laundry. Additional features include dual furnaces with HRVs, A/C rough-in, ceiling speakers, security rough-in, and custom closets.Located steps to Confederation Park and minutes to SAIT, UofC, hospitals, LRT, and downtown.Call today for details! (id:50315)

Property Summary
Property Type

Single Family

Building Type

Storey

2

Community Name

Subdivision Name

Mount Pleasant

Title

 

Land Size
1960Sq.Ft.
Built in
2026
Annual Property Taxes
$0
Parking Type
Detached Garage
Published
44 days
Building
Bedrooms
Total
5
Below Grade
 
Bathrooms
Total
4
Partial
1
Interior Features
Appliances Included

Refrigerator, Gas stove(s), Dishwasher, Microwave, Hood Fan, See remarks, Garage door opener, Washer & Dryer

Flooring

Hardwood, Carpeted

Basement Features

Finished, Full, Suite

Basement Type

Finished, Full, Suite

Building Features
Features

See remarks, Back lane, No Animal Home, No Smoking Home, Level, Gas BBQ Hookup

Foundation Type

Poured Concrete

Architectural Style

Construction Material

Wood frame

Floor Space
1960.00Sq.Ft.
Total Finished Area
1960.00Sq.Ft.
Structures
See Remarks
Heating & Cooling
Cooling
See Remarks
Fireplace
Heating Type
Forced air
Exterior Features
Exterior Finish
See Remarks
Neighbourhood Features
Amenities Nearby
 
 
Parking Type
Detached Garage
Total Parking Spaces
2
Interested in this property?
Kuldip Singh Parmar
Kuldip Singh Parmar
Associate
Balpreet Tehri
Balpreet Tehri
Associate
Have a question or just want to learn a bit more about the property? That's what I'm here for! Would you like me to send you more information.
By using our site, you agree to our Terms of use and Privacy Policy     Dismiss