$384,900
2 beds 2 baths
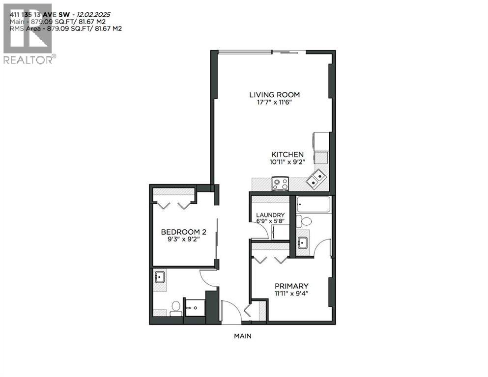
879 Sq.Ft.
411, 135 13 Avenue SW, Beltline, Calgary, Alberta, T2R0W8
MLS® Number: A2273894

Single Family House for Sale in Avenue SW Beltline Calgary

Property Information

Welcome to one of the most unique and character-rich condos in the Colours building—an Airbnb-friendly, 2-bedroom, 2-bathroom terrace-level home with one of the largest private outdoor spaces the building has to offer. This is urban living with personality, flexibility, and serious lifestyle appeal in the heart of Calgary’s vibrant 1st Street District.Loft-inspired and effortlessly cool, the open-concept interior is grounded by striking polished concrete floors and expansive windows that flood the space with natural light. The modern kitchen is both stylish and functional, featuring stainless steel appliances, granite countertops, and seamless flow into the main living area—perfect for entertaining or everyday living.The true showstopper is the oversized terrace, which functions as your own private outdoor living and dining room. Complete with a beautiful raised planter, this space is ideal for hosting friends, gardening, relaxing in the sun, or unwinding after a long day—an exceptional feature rarely found in condo living.The bright primary bedroom offers sliding glass doors, built-in closet organizers, and a private ensuite with a deep soaker tub. The second bedroom is cleverly designed behind sliding glass doors, making it ideal as a guest room, office, or flex space. You’ll also appreciate the oversized in-suite storage room with ensuite laundry—providing exceptional functionality rarely seen in comparable units.A titled parking stall is included, and with short-term rental potential, this property offers outstanding flexibility for both end-users and investors alike.Just steps from cafés, restaurants, nightlife, and the downtown core, this home isn’t just a place to live—it’s a lifestyle. Whether you’re looking to settle in or generate income, this is your opportunity to own a slice of one of Calgary’s most exciting urban communities. (id:50315)

Property Summary
Property Type

Single Family

Building Type

Storey

23

Community Name

Pets Allowed With Restrictions

Subdivision Name

Beltline

Title

 

Land Size
879Sq.Ft.
Built in
2009
Annual Property Taxes
$2209
Parking Type
Underground
Published
7 days
Building
Bedrooms
Total
2
Below Grade
 
Bathrooms
Total
2
Partial
0
Interior Features
Appliances Included

Refrigerator, Dishwasher, Stove, Microwave Range Hood Combo, Washer/Dryer Stack-Up

Flooring

Concrete

Basement Features

Basement Type

Building Features
Features

Closet Organizers, Parking

Foundation Type

Architectural Style

Construction Material

Poured concrete

Floor Space
879.00Sq.Ft.
Total Finished Area
879.00Sq.Ft.
Structures
Concrete, Stucco
Heating & Cooling
Cooling
Central air conditioning
Fireplace
Heating Type
Exterior Features
Exterior Finish
Concrete, Stucco
Neighbourhood Features
Amenities Nearby
 
 
Parking Type
Underground
Total Parking Spaces
1
Interested in this property?
Kuldip Singh Parmar
Kuldip Singh Parmar
Associate
Balpreet Tehri
Balpreet Tehri
Associate
Have a question or just want to learn a bit more about the property? That's what I'm here for! Would you like me to send you more information.
By using our site, you agree to our Terms of use and Privacy Policy     Dismiss