$3,399,900
4 beds 5 baths
3848 Sq.Ft.
3802 8A Street SW, Elbow Park, Calgary, Alberta, T2T3B5
MLS® Number: A2286064

Single Family House for Sale in A Street SW Elbow Park Calgary

Property Information

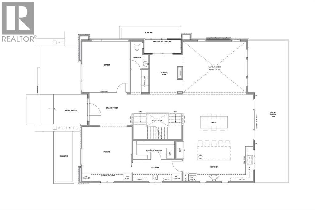
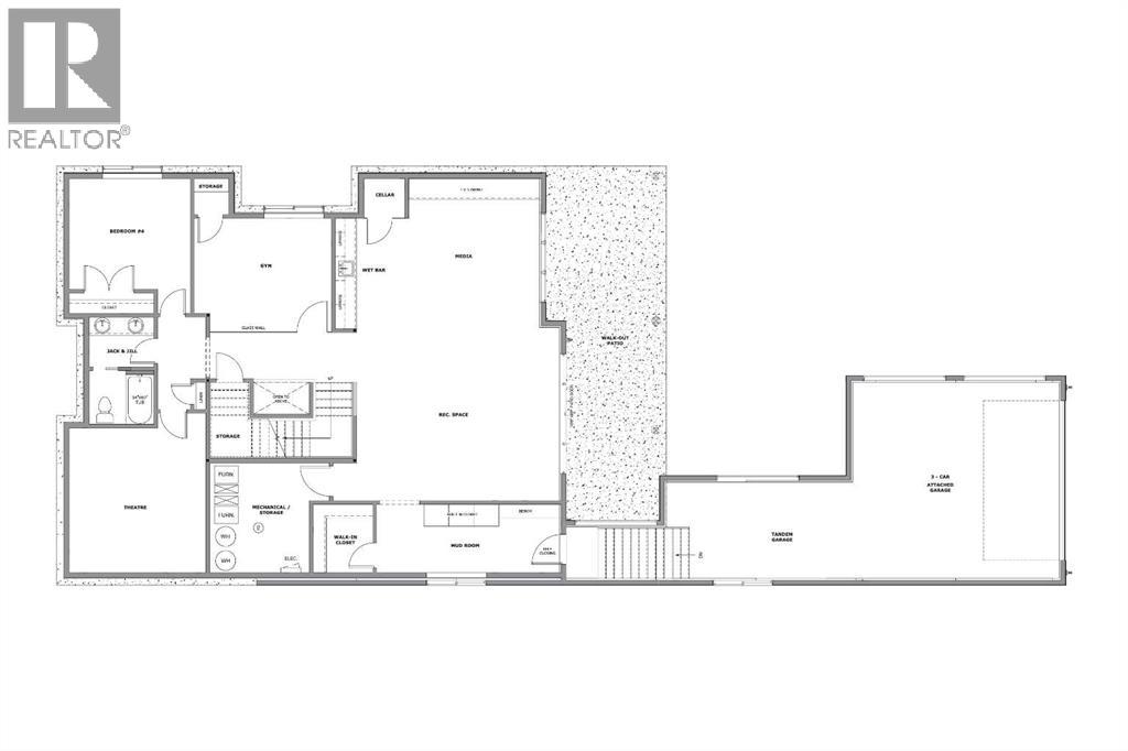
A FULLY CUSTOM, architecturally striking WALKOUT LUXURY HOME with a rare 3-CAR ATTACHED GARAGE, coming to life in the heart of ELBOW PARK. Opportunities like this are exceptionally limited in one of Calgary’s most prestigious inner-city communities.Just steps from the Elbow River pathways and surrounded by mature trees and timeless homes, this residence is offered as a TO-BE-BUILT CUSTOM HOME by NX Homes. Development and Building Permit approvals are already secured, allowing construction to begin upon a firm sale, with an estimated 12-15 month build timeline (subject to final selections and customary construction conditions). Move forward with confidence while tailoring the interior finishes to your personal vision.Located in ELBOW PARK, one of Calgary’s most established and prestigious neighbourhoods, you are moments from the Elbow River pathways, River Park, and Sandy Beach. Enjoy close proximity to the Glencoe Club, Britannia Plaza, 4th Street restaurants and cafés, and easy access to Mission, Marda Loop, and downtown. Highly regarded schools including Elbow Park School, William Reid School, and Western Canada High School are all nearby, adding long-term value to this exceptional location.The design is bold and unmistakably architectural. A grand open staircase framed by feature walls sets the tone on entry. A glass-walled office sits off the foyer, while the formal dining room features a built-in buffet and direct access to the servery and BUTLER’S PANTRY. At the center of the home, the kitchen delivers presence and performance with a gas cooktop, oversized island with prep sink, and a large rear window over the main sink. The adjacent dining nook opens to the upper deck for seamless indoor-outdoor living. The two-storey family room rises above, open and filled with light, anchored by a striking TWO-WAY FIREPLACE connecting to a lounge overlooking a curated garden feature. An upscale powder room is privately positioned nearby.Upstairs, the primary suite is elevated and private, complete with a spa-inspired ensuite featuring steam shower, freestanding tub, and a skylit walk-in closet with island that connects directly to the laundry room. Two additional bedrooms each offer private ensuites, while a bright bonus room with balcony access overlooks the living space below.The WALKOUT lower level expands the lifestyle offering with media and recreation areas, sliding patio doors to the garden, wine cellar, gym space, additional bedroom, and generous storage. A well-designed mudroom with built-ins and walk-in closet connects seamlessly to the three-car garage.The exterior architecture and structural design are fully finalized, providing a refined framework while allowing you to customize the interior to your exact vision. Don’t miss this rare opportunity to secure a fully approved CUSTOM LUXURY HOME in an iconic Calgary location, with architectural certainty and design flexibility already in place. (id:50315)

Property Summary
Property Type

Single Family

Building Type

Storey

2

Community Name

Subdivision Name

Elbow Park

Title

 

Land Size
3848Sq.Ft.
Built in
2027
Annual Property Taxes
$
Parking Type
Attached Garage, Tandem
Published
36 days
Building
Bedrooms
Total
4
Below Grade
 
Bathrooms
Total
5
Partial
1
Interior Features
Appliances Included

Refrigerator, Cooktop - Gas, Dishwasher, Microwave, Oven - Built-In, Hood Fan, Garage door opener, Washer & Dryer

Flooring

Tile, Hardwood, Carpeted

Basement Features

Finished, Full, Walk out

Basement Type

Finished, Full, Walk out

Building Features
Features

Back lane, Closet Organizers, Gas BBQ Hookup

Foundation Type

Poured Concrete

Architectural Style

Construction Material

Wood frame

Floor Space
3848.00Sq.Ft.
Total Finished Area
3848.00Sq.Ft.
Structures
Stucco, Wood siding, Composite Siding
Heating & Cooling
Cooling
See Remarks
Fireplace
Heating Type
Forced air, Natural gas
Exterior Features
Exterior Finish
Stucco, Wood siding, Composite Siding
Neighbourhood Features
Amenities Nearby
 
 
Parking Type
Attached Garage, Tandem
Total Parking Spaces
3
Interested in this property?
Kuldip Singh Parmar
Kuldip Singh Parmar
Associate
Balpreet Tehri
Balpreet Tehri
Associate
Have a question or just want to learn a bit more about the property? That's what I'm here for! Would you like me to send you more information.
By using our site, you agree to our Terms of use and Privacy Policy     Dismiss