2394 Sq.Ft.
320, 68, 7930 Bowness Road NW, Bowness, Calgary, Alberta, T3B0H3
MLS® Number: A2122445

Office for Sale in Bowness Road NW Bowness Calgary

Property Information

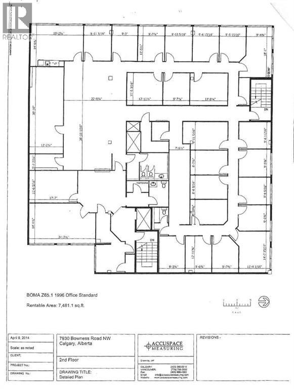
Entire 2nd floor, 7,481 sq. ft. of secure well developed space with abundant natural light, former formerly occupied by Child Family services space. 3rd floor suite of 2,394 sq. ft., can be subdivided. Elevator access, excellent parking, below market rates including utilities, and great Bowness Road location. 3 story retail /office building with elevator access. Landlord completing upgrades to common areas. Accessible location with public transit and close proximity to Hwy 1, Sarcee Trail, Stoney Trail, Crowchild Trail and Downtown. Ample front parking. (id:50315)

Property Summary
Property Type

Office

Building Type

Storey

Community Name

Subdivision Name

Bowness

Title

 

Land Size
2394Sq.Ft.
Built in
1978
Annual Property Taxes
$
Parking Type
Published
659 days
Building
Bedrooms
Total
Below Grade
 
Bathrooms
Total
Partial
Interior Features
Appliances Included

Flooring

Basement Features

Basement Type

Building Features
Features

Foundation Type

Architectural Style

Construction Material

Floor Space
2394.00Sq.Ft.
Total Finished Area
2394.00Sq.Ft.
Structures
Heating & Cooling
Cooling
Fireplace
Heating Type
Exterior Features
Exterior Finish
Neighbourhood Features
Amenities Nearby
 
 
Parking Type
Total Parking Spaces
Interested in this property?
Kuldip Singh Parmar
Kuldip Singh Parmar
Associate
Balpreet Tehri
Balpreet Tehri
Associate
Have a question or just want to learn a bit more about the property? That's what I'm here for! Would you like me to send you more information.
By using our site, you agree to our Terms of use and Privacy Policy     Dismiss