$499,900
2 beds 3 baths
1285 Sq.Ft.
303, 437 Alpine Avenue SW, Alpine Park, Calgary, Alberta, T2Y0Z8
MLS® Number: A2266495

Single Family House for Sale in Alpine Avenue SW Alpine Park Calgary

Property Information

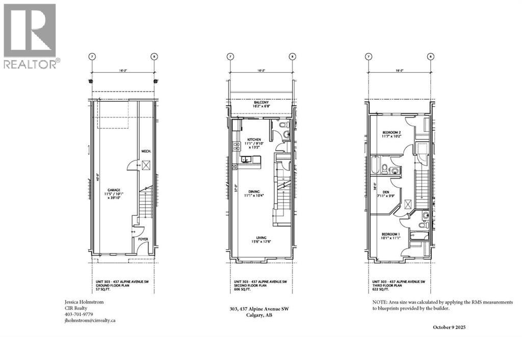
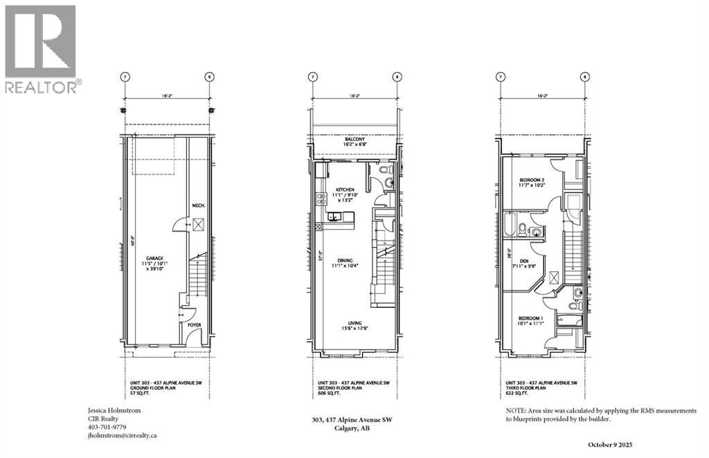
THERE’S A REASON ALPINE PARK IS GETTING TALKED ABOUT—AND IT’S NOT JUST THE ARCHITECTURE OR THE NEW URBAN VILLAGE VIBE. It’s the way this southwest Calgary neighbourhood brings together community, style, and walkability in a way that actually works. And if you’ve been waiting for the right foothold in this forward-thinking pocket, the Jasmine model at 303, 437 Alpine Avenue SW might be the one.This brand-new, THREE-STOREY TOWNHOME from Homes by Avi delivers 1,285 SQ FT of well-planned living space that feels both functional and refined. The WEST-FACING FRONT ENTRY opens to a simple, practical ground floor—just a crisp foyer, garage access, and the stairs leading up to the heart of the home. A DOUBLE ATTACHED TANDEM GARAGE keeps vehicles secure and storage organized, perfect for bikes, gear, or that extra freezer every household eventually needs.Up one level, the OPEN-CONCEPT KITCHEN, LIVING, AND DINING AREA keeps sightlines open and routines flowing. The kitchen pairs QUARTZ COUNTERS with a CONTEMPORARY TILE BACKSPLASH, a PANTRY, and a SPACIOUS BREAKFAST BAR that turns into a hub for everything from first light espresso to late-night takeout. Just off the kitchen, an EAST-FACING BALCONY STRETCHES OVER 16 FEET WIDE—perfect for sunny breakfasts or evening dinners that feel quietly removed from the street below.On the top floor, thoughtful zoning keeps the two bedrooms separated for privacy. The primary bedroom includes a WALK-IN CLOSET and a sleek 3-PIECE ENSUITE, while the second bedroom also features a WALK-IN CLOSET with easy access to a full bath. A VERSATILE DEN adds space for a home office, Peloton, or nursery, and the LAUNDRY ROOM is right where it should be—upstairs. Finishes throughout feel deliberate and elevated, with LUXURY VINYL PLANK FLOORING and cohesive design details that tie the main living space together.Outside, the exterior mixes MODERN MATERIALS and architectural lines, giving the home that contemporary “new urban village” character the ar ea is known for. Beyond the front door, the neighbourhood continues to grow into ONE OF CALGARY’S MOST DESIGN-SAVVY NEW COMMUNITIES—defined by its wide, tree-lined streets, connected green boulevards, and a future Village Centre bringing shops and energy to the core.POSSESSION AVAILABLE MID-NOVEMBER. Book your showing and see why this phase of Alpine Park has everyone talking. • PLEASE NOTE: Photos are virtual renderings – fit and finish may differ on completed spec. (id:50315)

Property Summary
Property Type

Single Family

Building Type

Storey

3

Community Name

Golf Course Development, Pets Allowed With Restrictions

Subdivision Name

Alpine Park

Title

 

Land Size
1285Sq.Ft.
Built in
2025
Annual Property Taxes
$
Parking Type
Attached Garage, Tandem, Concrete
Published
55 days
Building
Bedrooms
Total
2
Below Grade
 
Bathrooms
Total
3
Partial
1
Interior Features
Appliances Included

Refrigerator, Range - Electric, Dishwasher, Microwave Range Hood Combo, Garage door opener

Flooring

Carpeted, Vinyl Plank

Basement Features

None

Basement Type

None

Building Features
Features

Parking

Foundation Type

Poured Concrete

Architectural Style

Construction Material

Wood frame

Floor Space
1285.00Sq.Ft.
Total Finished Area
1285.00Sq.Ft.
Structures
Stucco, Composite Siding
Heating & Cooling
Cooling
None
Fireplace
Heating Type
Forced air, High-Efficiency Furnace, Natural gas, Central heating, Other
Exterior Features
Exterior Finish
Stucco, Composite Siding
Neighbourhood Features
Amenities Nearby
 
 
Parking Type
Attached Garage, Tandem, Concrete
Total Parking Spaces
2
Interested in this property?
Kuldip Singh Parmar
Kuldip Singh Parmar
Associate
Balpreet Tehri
Balpreet Tehri
Associate
Have a question or just want to learn a bit more about the property? That's what I'm here for! Would you like me to send you more information.
By using our site, you agree to our Terms of use and Privacy Policy     Dismiss