$1,599,999
7 beds 5 baths
3924 Sq.Ft.
3015 Quadra St, Victoria, British Columbia, V8T4G2
MLS® Number: 1017189

Single Family House Character for Sale in Quadra St Victoria

Property Information

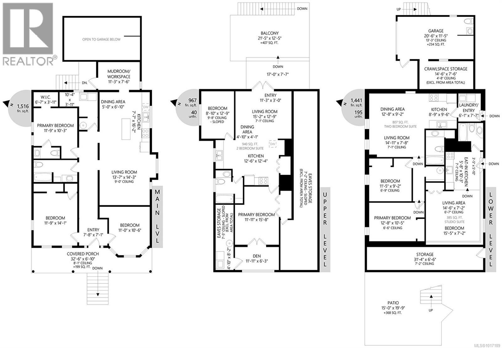
OPEN HOUSE SAT & SUN 1-3pm. Investor Alert! Welcome to 3015 Quadra Street. This updated stacked duplex + 2 separate lower suites has 7 bedrooms and 5 bathrooms on 3 levels with separated laundry and plenty of storage. Roof, blinds, windows, electrical and plumbing have been updated. Parking for 7 cars. Centrally located within walking distance to all amenities. Garage has plumbing/electrical and could be converted into a 5th suite. Abundant fruit and vegetable garden. Don't miss this opportunity to own a well kept revenue generating property in the heart of the city! (id:50315)

Property Summary
Property Type

Single Family

Building Type

Character

Storey

Community Name

Subdivision Name

Title

 

Land Size
3924Sq.Ft.
Built in
1913
Annual Property Taxes
$6577
Parking Type
Published
3 days
Building
Bedrooms
Total
7
Below Grade
 
Bathrooms
Total
5
Partial
Interior Features
Appliances Included

Flooring

Basement Features

Basement Type

Building Features
Features

Central location, Other, Rectangular

Foundation Type

Architectural Style

Character

Construction Material

Floor Space
3924.00Sq.Ft.
Total Finished Area
3924.00Sq.Ft.
Structures
Heating & Cooling
Cooling
None
Fireplace
Heating Type
Baseboard heaters, Electric
Exterior Features
Exterior Finish
Neighbourhood Features
Amenities Nearby
 
 
Parking Type
Total Parking Spaces
7
Interested in this property?
Kuldip Singh Parmar
Kuldip Singh Parmar
Associate
Balpreet Tehri
Balpreet Tehri
Associate
Have a question or just want to learn a bit more about the property? That's what I'm here for! Would you like me to send you more information.
By using our site, you agree to our Terms of use and Privacy Policy     Dismiss