$279,000
1 beds 2 baths
580 Sq.Ft.
3, 2804 17 Avenue SW, Shaganappi, Calgary, Alberta, T3E6K8
MLS® Number: A2282839

Single Family House for Sale in Avenue SW Shaganappi Calgary

Property Information

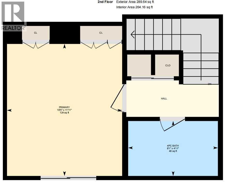
Modern Minimalist Corner Townhouse – Stylish, Simple, and Sustainable Living!Located in a peaceful, well-connected inner city neighborhood, this home offers the perfect balance of urban convenience and tranquil living.Experience the beauty of simplicity in this thoughtfully designed minimalist townhouse, where clean lines and open spaces create a calm, clutter-free atmosphere. This home features an open-concept layout that seamlessly connects the living, dining, and kitchen areas— perfect for those who appreciate functional design and modern aesthetics.The kitchen comes equipped with brand-new stainless steel appliances, sleek cabinetry, and energy-efficient LED fixtures that blend form and function. Upstairs, the spacious master bedroom with double closets, providing ample storage while maintaining the minimalist aesthetic. A private balcony, ideal for morning coffee or evening relaxation. Enjoy the abundant sunlight and a serene retreat from the city’s bustle! A convenient 4 piece bathroom with tasteful designer wall completes this level,Downstairs, a spacious basement living room offers a cozy retreat for relaxing or working— ideal for movie nights or a quiet office or 2nd bedroom. The home includes a newly renovated bathroom with modern fixtures, plus a laundry room with built-in shelving for organized convenience.Throughout the home, high-end luxury vinyl plank flooring adds warmth, durability, and a refined modern touch.Outside, you’ll find a tidy yard and a welcoming front porch.With neutral color tones, high-quality finishes, and low-maintenance materials, this townhouse is ideal for anyone embracing a minimalist lifestyle — less stuff, more space, and a focus on what truly matters.Close to everything, best inner-city living with quick access to downtown, 17th Ave, and the CTrain station. Few minutes away to Shaganappi Point Golf Course, Edworthy Park, schools, playgrounds, shops, restaurants and cafés. (id:50315)

Property Summary
Property Type

Single Family

Building Type

Storey

2

Community Name

Pets Allowed With Restrictions

Subdivision Name

Shaganappi

Title

 

Land Size
580Sq.Ft.
Built in
1978
Annual Property Taxes
$1637
Parking Type
Published
17 days
Building
Bedrooms
Total
1
Below Grade
 
Bathrooms
Total
2
Partial
1
Interior Features
Appliances Included

Washer, Refrigerator, Dishwasher, Stove, Dryer, Microwave Range Hood Combo

Flooring

Vinyl

Basement Features

Finished, Full

Basement Type

Finished, Full

Building Features
Features

No Animal Home, No Smoking Home, Parking

Foundation Type

Poured Concrete

Architectural Style

Construction Material

Poured concrete, Wood frame

Floor Space
580.00Sq.Ft.
Total Finished Area
580.00Sq.Ft.
Structures
Concrete, Stucco, Composite Siding
Heating & Cooling
Cooling
None
Fireplace
Heating Type
Forced air, Natural gas
Exterior Features
Exterior Finish
Concrete, Stucco, Composite Siding
Neighbourhood Features
Amenities Nearby
 
 
Parking Type
Total Parking Spaces
1
Interested in this property?
Kuldip Singh Parmar
Kuldip Singh Parmar
Associate
Balpreet Tehri
Balpreet Tehri
Associate
Have a question or just want to learn a bit more about the property? That's what I'm here for! Would you like me to send you more information.
By using our site, you agree to our Terms of use and Privacy Policy     Dismiss