$499,000
1 beds 1 baths
1217 Sq.Ft.
2916 17 Street SE, Inglewood, Calgary, Alberta, T2G3W3
MLS® Number: A2290249

Single Family House for Sale in Street SE Inglewood Calgary

Property Information

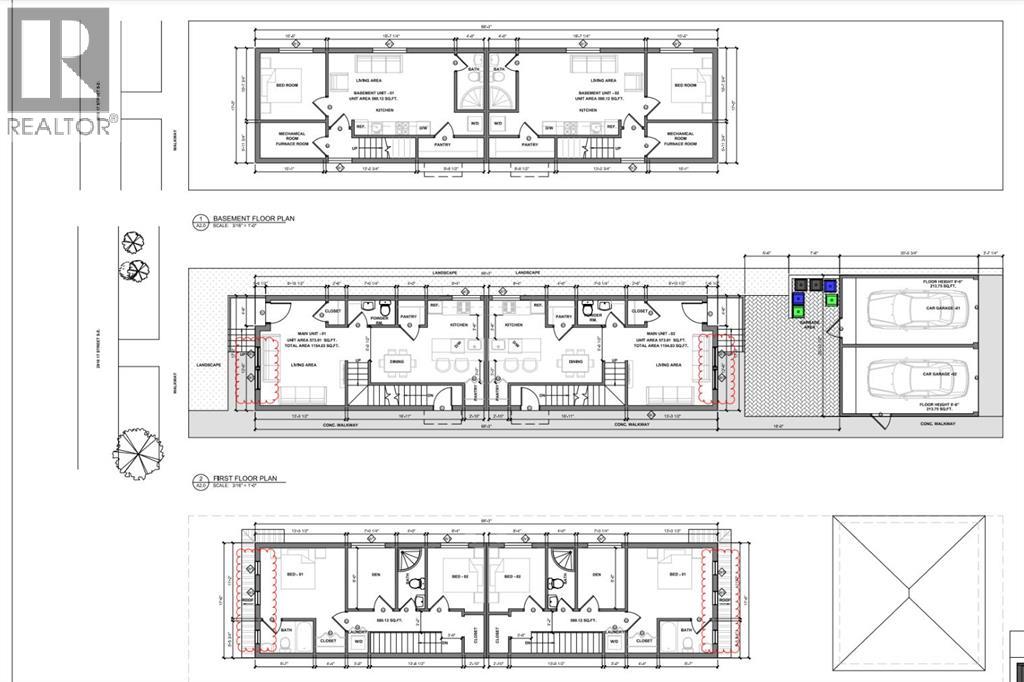
Attention Builders, Developers & Investors! Exceptional DP APPROVED for 4 UNITS, infill opportunity in Inglewood, one of Calgary’s most iconic and in-demand inner-city communities. Approved for a back-to-back duplex with two legal basement suites (4 units total), this project is truly shovel-ready. Utilities have been disconnected, the demolition permit is approved, and the interior of the existing home has already been stripped down to the studs — no asbestos remediation required. Build immediately and capitalize this season. Situated just 8 minutes from downtown, Inglewood is renowned for its vibrant character, strong rental demand, and long-term appreciation. The neighborhood offers an unbeatable lifestyle with river pathways, parks, schools, breweries, boutiques, music venues, and some of Calgary’s top restaurants, all within walking distance. Easy access to transit and major roadways further enhances appeal for both end-users and tenants. This is a rare opportunity to develop in a high-barrier, mature inner-city location where new inventory is limited. Ideal for strong resale value, long-term rental hold, or investor exit, in a community that consistently outperforms. Don’t miss your chance to build in one of Calgary’s most established and sought-after neighborhoods. (id:50315)

Property Summary
Property Type

Single Family

Building Type

Storey

1.5

Community Name

Subdivision Name

Inglewood

Title

 

Land Size
1217Sq.Ft.
Built in
1913
Annual Property Taxes
$2435
Parking Type
Detached Garage
Published
days
Building
Bedrooms
Total
1
Below Grade
 
Bathrooms
Total
1
Partial
0
Interior Features
Appliances Included

None

Flooring

Other

Basement Features

Unfinished, Full

Basement Type

Unfinished, Full

Building Features
Features

See remarks

Foundation Type

Poured Concrete

Architectural Style

Construction Material

Floor Space
1217.00Sq.Ft.
Total Finished Area
1217.00Sq.Ft.
Structures
Heating & Cooling
Cooling
None
Fireplace
Heating Type
Exterior Features
Exterior Finish
Neighbourhood Features
Amenities Nearby
 
 
Parking Type
Detached Garage
Total Parking Spaces
1
Interested in this property?
Kuldip Singh Parmar
Kuldip Singh Parmar
Associate
Balpreet Tehri
Balpreet Tehri
Associate
Have a question or just want to learn a bit more about the property? That's what I'm here for! Would you like me to send you more information.
By using our site, you agree to our Terms of use and Privacy Policy     Dismiss