$1,167,700
4 beds 4 baths
1891 Sq.Ft.
2709 18 Street NW, Capitol Hill, Calgary, Alberta, T2T1E2
MLS® Number: A2279872

Single Family House for Sale in Street NW Capitol Hill Calgary

Property Information

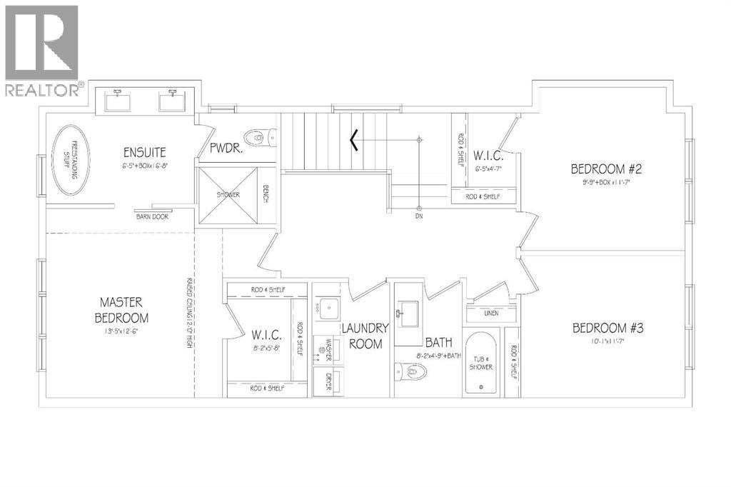
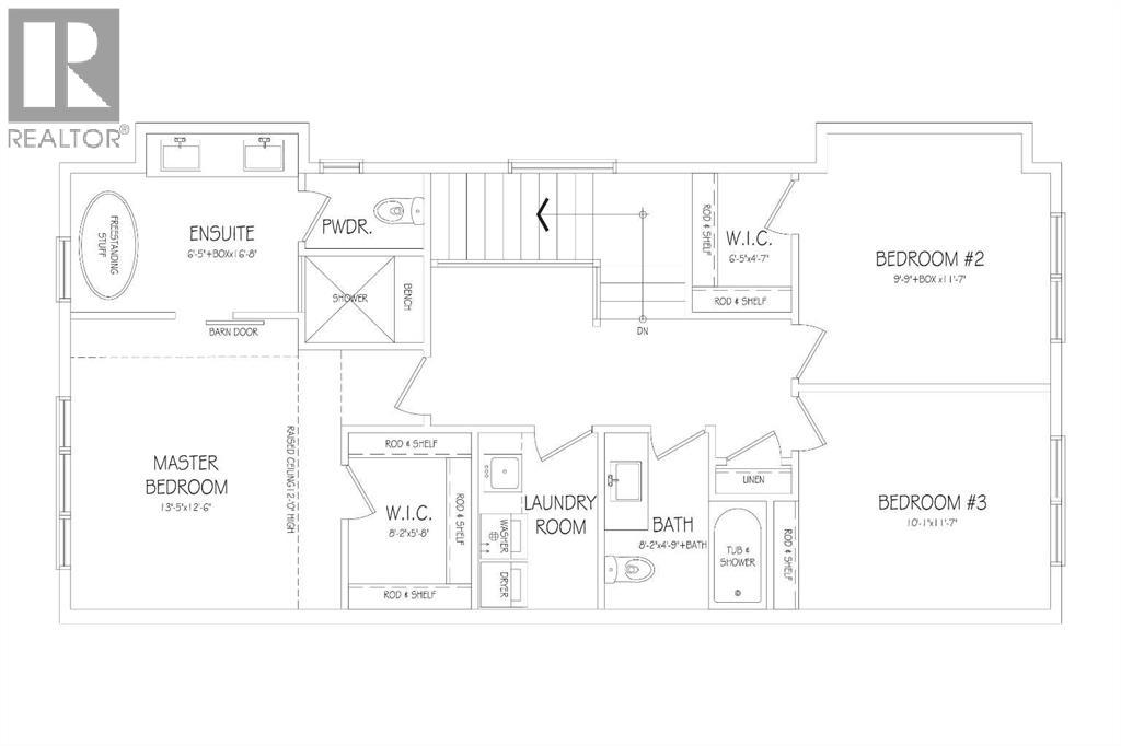
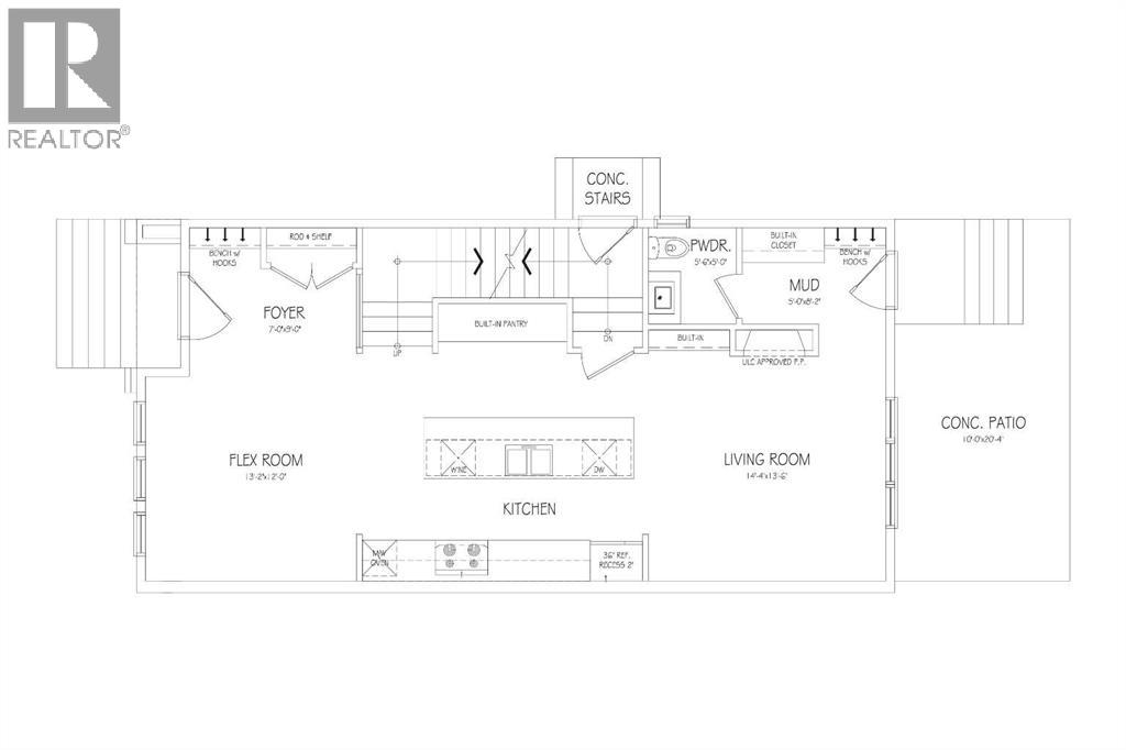
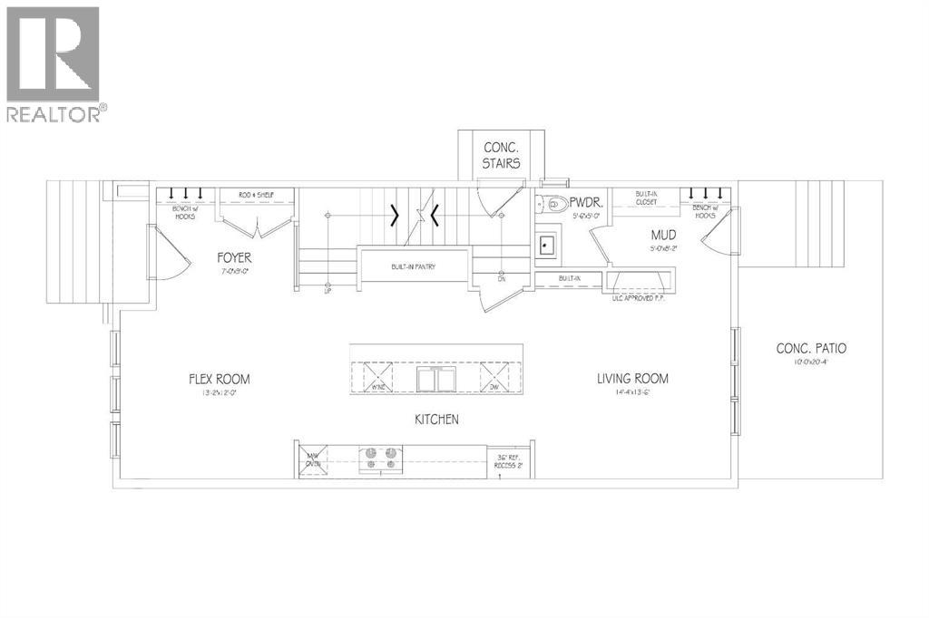
This modern semi-detached infill home in Capitol Hill Calgary makes a strong first impression with its timeless exterior, oversized windows, and bright, light-filled interior. Designed for both style and everyday function, this NON-SUITED inner-city home offers the perfect balance of open-concept living with clearly defined spaces, creating a polished and comfortable layout ideal for families, professionals, or those looking to upgrade in a prime location.With 4 bedrooms, 3.5 bathrooms, and a fully finished basement, there is room to entertain, unwind, and grow over time. The front entry opens into a proper foyer with built-in storage, offering the organization and practicality buyers love in a modern Calgary infill.Just off the foyer is a dedicated formal dining room, ideal for hosting family dinners or entertaining guests, filled with natural light while remaining connected to the rest of the main floor.At the heart of the home, the kitchen is refined and highly functional with quartz countertops, a full-height backsplash, and sleek modern cabinetry. The premium appliance package supports serious cooking and everyday convenience, including a gas cooktop, wall oven, French door refrigerator, dishwasher, and space for a beverage fridge. The oversized island provides ample prep space and seating, making it perfect for gatherings and open-concept entertaining.The living room is anchored by a striking full-height gas fireplace and framed by large rear windows overlooking the yard. Sliding patio doors lead to the outdoor space, creating seamless indoor-outdoor living, ideal for summer evenings and weekend relaxation.A discreet powder room and a thoughtfully designed mudroom with built-in storage complete the main level, supporting busy lifestyles with smart organization.Upstairs, the primary suite feels calm and private, featuring a walk-in closet and a spa-inspired ensuite with a freestanding tub, double vanity, separate shower, and private water closet. Tw o additional bedrooms are generously sized and share a full bath. Upstairs laundry adds everyday convenience and keeps routines effortless.The fully finished basement expands the home’s versatility with a large recreation area, plus a dedicated home theatre, gym, games room, or office space. A stylish wet bar enhances entertaining potential, while the fourth bedroom and full bathroom make this level ideal for guests, teenagers, or multi-generational living.Located on a quiet, tree-lined street, this home is in one of the most desirable inner-city Calgary neighbourhoods. Enjoy being steps from Confederation Park, minutes to the University of Calgary, SAIT, North Hill Centre, local cafés, transit, and a short commute to downtown Calgary.With its modern design, walkability, and strong community feel, Capitol Hill remains one of Calgary’s most sought-after infill locations. (id:50315)

Property Summary
Property Type

Single Family

Building Type

Storey

2

Community Name

Golf Course Development

Subdivision Name

Capitol Hill

Title

 

Land Size
1891Sq.Ft.
Built in
2026
Annual Property Taxes
$
Parking Type
Detached Garage
Published
61 days
Building
Bedrooms
Total
4
Below Grade
 
Bathrooms
Total
4
Partial
1
Interior Features
Appliances Included

Cooktop - Gas, Dishwasher, Oven, Microwave, Hood Fan, Garage door opener

Flooring

Tile, Hardwood, Carpeted

Basement Features

Finished, Full

Basement Type

Finished, Full

Building Features
Features

Back lane, Wet bar, Closet Organizers, Gas BBQ Hookup

Foundation Type

Poured Concrete

Architectural Style

Construction Material

Wood frame

Floor Space
1891.00Sq.Ft.
Total Finished Area
1891.00Sq.Ft.
Structures
Stucco, Composite Siding
Heating & Cooling
Cooling
See Remarks
Fireplace
Heating Type
Forced air
Exterior Features
Exterior Finish
Stucco, Composite Siding
Neighbourhood Features
Amenities Nearby
 
 
Parking Type
Detached Garage
Total Parking Spaces
2
Interested in this property?
Kuldip Singh Parmar
Kuldip Singh Parmar
Associate
Balpreet Tehri
Balpreet Tehri
Associate
Have a question or just want to learn a bit more about the property? That's what I'm here for! Would you like me to send you more information.
By using our site, you agree to our Terms of use and Privacy Policy     Dismiss