$699,700
4 beds 2 baths
 
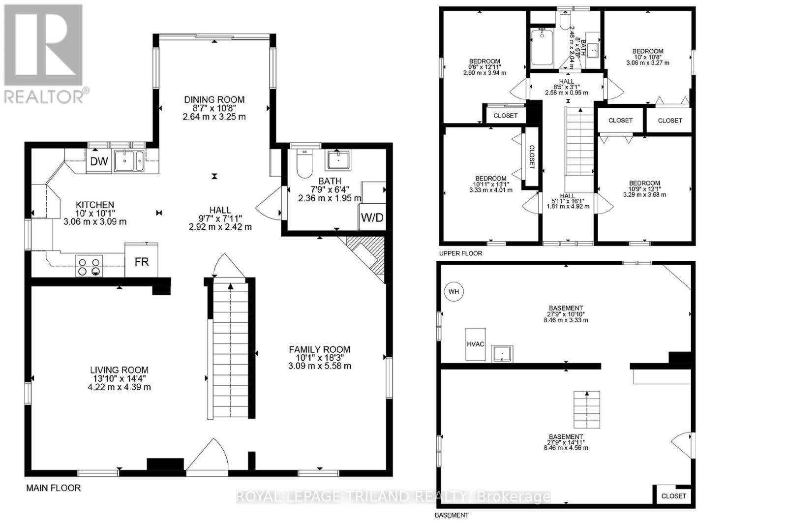
264 GEORGE STREET, North Middlesex (Parkhill), Ontario, N0M2K0
MLS® Number: X12481716

Single Family House for Sale in GEORGE STREET North Middlesex (Parkhill)

Property Information

WELCOME TO YOUR OWN PERSONAL RESORT IN SMALL TOWN ONTARIO! This Parkhill gem has been meticulously maintained for over 40 years by the same owners & is absolutely loaded with premium amenities providing a package that is unbeatable in this price range! Nestled into the most desirable portion of Parkhill's quiet neighborhoods on a DOUBLE WIDTH lot with a fully fenced yard that includes a massive lawn space (ideal for a good sized ice rink, active kids, grandkids, or dogs, etc.) bordered by mature trees & also the spa-like pool setting with pergola and hot tub deck surrounded by flagstone. It's like 2 backyards in one! This premium location & with its oversized lot is surrounded by other large parcels fostering a rural feel but still being just steps away from all of Parkhill's convenient amenities. In addition to the exceptional landscaping & breathtaking setting, this stately & stunning century home doesn't miss a beat, from the 2022 kitchen & main level laundry/bathroom to the four corner bedrooms with the full bath upstairs. The list of upgrades is extensive: roof was brand new summer 2025, new pool liner, hot tub, & fence in 2023, & the 10-ft ceilings on the main level are in immaculate condition surrounded by updated thermal pane windows & hardwood flooring & it's all forced air gas heated & central air conditioned. This iconic property also offers a lot of storage space, with a full basement accessible by a separate entrance, a nice large storage shed, & a fair amount of space in the enclosed storage room at the back of the carport, which provides two covered sparking spaces in addition to the ample parking in the driveway. This carport could be easily walled-in to create a 2 car garage. Whether it's for entertaining a growing family or retiring in a quiet small town close to one of Canada's best beaches in Grand Bend just a few minutes up the road, if you can afford this level of luxury, you cannot afford to pass this up. This is a must see! (id:50315)

Property Summary
Property Type

Single Family

Building Type

Storey

2

Community Name

Subdivision Name

Title

 

Land Size
 
Built in
Annual Property Taxes
$3231
Parking Type
Garage, Carport
Published
9 days
Building
Bedrooms
Total
4
Below Grade
 
Bathrooms
Total
2
Partial
1
Interior Features
Appliances Included

Hot Tub

Flooring

Basement Features

Full, Separate entrance

Basement Type

Full, Separate entrance

Building Features
Features

Cul-de-sac, Flat site, Lighting, Dry, Gazebo

Foundation Type

Concrete

Architectural Style

Construction Material

Floor Space
.00
Total Finished Area
.00
Structures
Brick
Heating & Cooling
Cooling
Central air conditioning
Fireplace
Insert
Heating Type
Forced air, Natural gas
Exterior Features
Exterior Finish
Brick
Neighbourhood Features
Amenities Nearby
 
 
Parking Type
Garage, Carport
Total Parking Spaces
8
Interested in this property?
Kuldip Singh Parmar
Kuldip Singh Parmar
Associate
Balpreet Tehri
Balpreet Tehri
Associate
Have a question or just want to learn a bit more about the property? That's what I'm here for! Would you like me to send you more information.
By using our site, you agree to our Terms of use and Privacy Policy     Dismiss