$725,000
4 beds 2 baths
1126 Sq.Ft.
2423 37 Street SW, Glendale, Calgary, Alberta, T3E3A8
MLS® Number: A2242369

Single Family House Bungalow for Sale in Street SW Glendale Calgary

Property Information

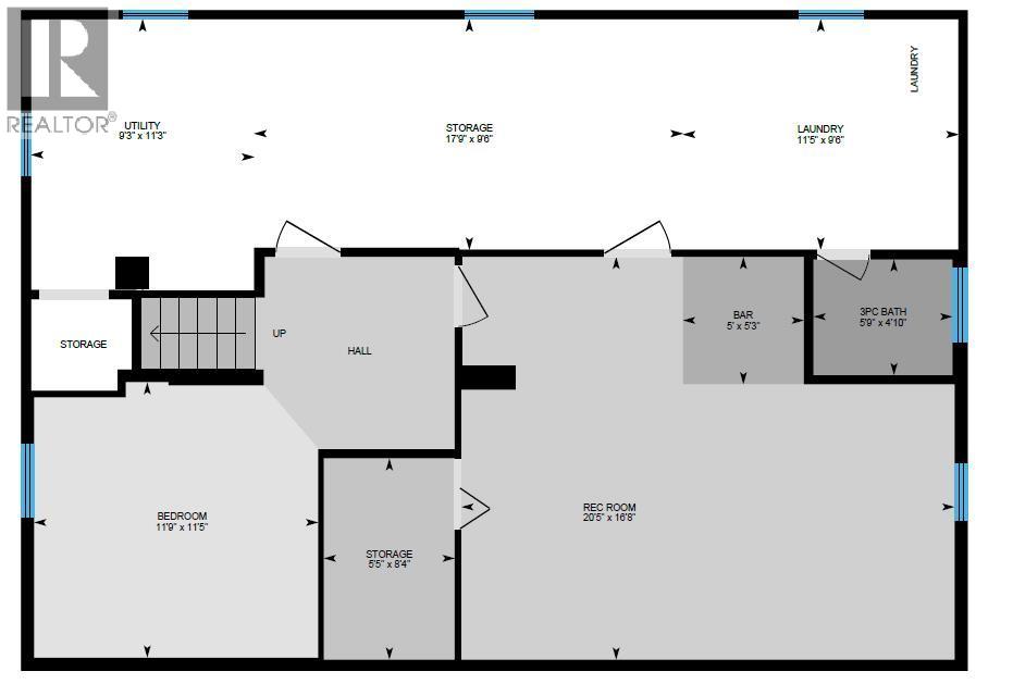
Located in the vibrant, established community of Glendale, this classic 1950s bungalow sits on a rare 55x100 M-C1 zoned lot along tree-lined 37th Street—offering timeless charm and incredible potential. In a neighbourhood already embracing modern transformation, there are several redevelopments on the block, including a striking 6-plex next door. The lot’s elevated front yard adds privacy and presence, and excavation has already been done on one side to accommodate a walk-out entrance—saving time and cost for future development plans. Whether you build now or hold, the existing 1950s bungalow is well maintained and full of character, featuring refinished hardwood floors, an updated main bath, and a spacious main level with large living room, numerous picture windows, and a bright kitchen with butcher block counters and stainless appliances. Three bedrooms up, including a king-sized primary, plus a finished lower level with 4th bedroom, rec room with wet bar, laundry area, 3-piece bath, and a versatile, expandable layout. With a full-length deck, south-facing garden space, and off-street parking for three (Including a single detached garage), this property offers opportunity in a sought-after location, for developers and families alike! (id:50315)

Property Summary
Property Type

Single Family

Building Type

Bungalow

Storey

1

Community Name

Subdivision Name

Glendale

Title

 

Land Size
1126Sq.Ft.
Built in
1954
Annual Property Taxes
$4137
Parking Type
Detached Garage
Published
89 days
Building
Bedrooms
Total
4
Below Grade
 
Bathrooms
Total
2
Partial
0
Interior Features
Appliances Included

Washer, Refrigerator, Cooktop - Electric, Dishwasher, Dryer, Microwave, Garburator, Oven - Built-In

Flooring

Hardwood, Ceramic Tile, Vinyl

Basement Features

Partially finished, Full

Basement Type

Partially finished, Full

Building Features
Features

See remarks, Back lane, Gas BBQ Hookup

Foundation Type

Poured Concrete

Architectural Style

Bungalow

Construction Material

Wood frame

Floor Space
1126.00Sq.Ft.
Total Finished Area
1126.00Sq.Ft.
Structures
Vinyl siding
Heating & Cooling
Cooling
None
Fireplace
Heating Type
Forced air, Natural gas
Exterior Features
Exterior Finish
Vinyl siding
Neighbourhood Features
Amenities Nearby
 
 
Parking Type
Detached Garage
Total Parking Spaces
3
Interested in this property?
Kuldip Singh Parmar
Kuldip Singh Parmar
Associate
Balpreet Tehri
Balpreet Tehri
Associate
Have a question or just want to learn a bit more about the property? That's what I'm here for! Would you like me to send you more information.
By using our site, you agree to our Terms of use and Privacy Policy     Dismiss