$1,495,000
5 beds 5 baths
2189 Sq.Ft.
2412 1 Avenue NW, West Hillhurst, Calgary, Alberta, T2N0B9
MLS® Number: A2295824

Single Family House for Sale in Avenue NW West Hillhurst Calgary

Property Information

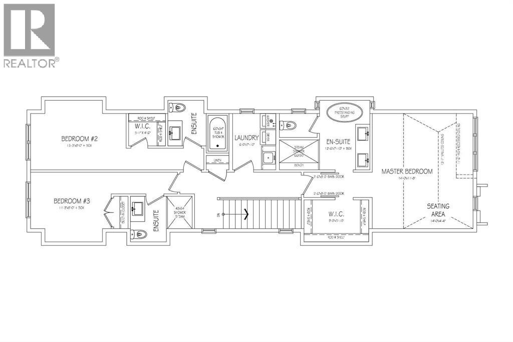
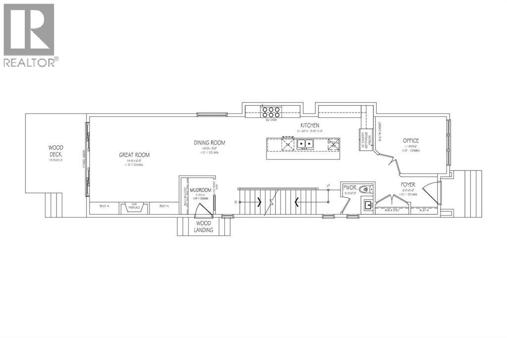
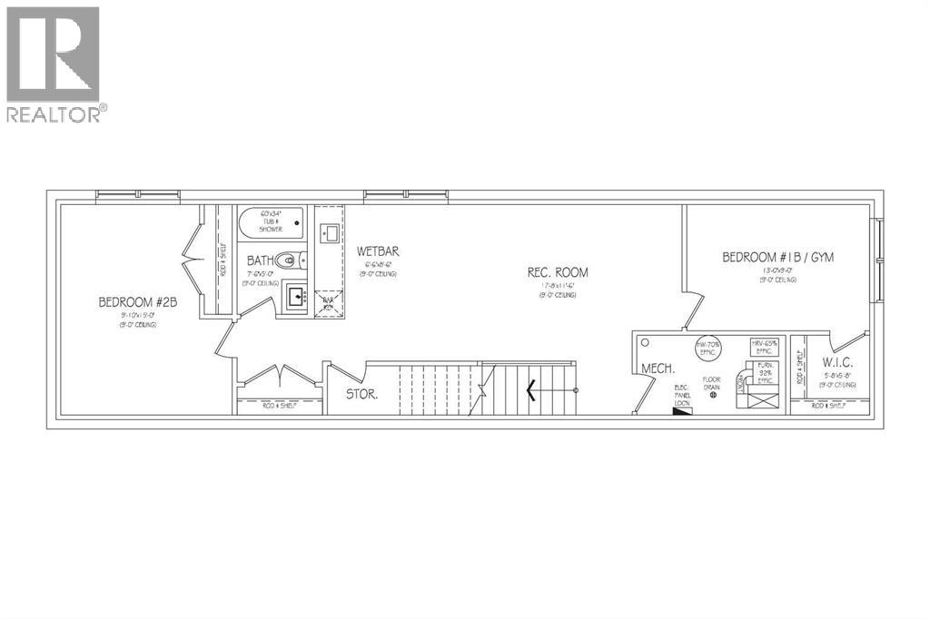
COMING THIS SUMMER TO WEST HILLHURST! Surrounded by parks, pathways, and vibrant Kensington amenities – you won’t want to miss this PREMIUM LUXURY DETACHED home Complete w/ 4-BEDS (optional gym in basement), LARGE BACKYARD, high-end finishes, & luxury upgrades including engineered hardwood flooring, 10’ ceilings, & custom detailing throughout.The open-concept main floor features a HOME OFFICE with views into the main living/dining areas and an impressive, upscale kitchen. Offering custom-built cabinetry, a large central island, a flush eating bar, premium stainless-steel appliances, large pantry & a built-in custom range hood. The spacious living room enjoys an inset gas fireplace w/ tile surround & built-in cabinetry w/ large sliding glass doors that take you out to the FULLY LANDSCAPED backyard. A side mudroom with a custom closet keeps your family organized & a gorgeous powder room finishes off the main floor.The second level hosts the primary suite featuring a vaulted ceiling, a large walk-in closet, & a 5-pc ensuite w/ dual vanity, heated floors, large glass enclosed shower, a free-standing soaker tub, & a private water closet. Two additional bedrooms have custom closets & their own ENSUITE w/ quartz counters, an under-mount sink, & walk-in shower.The fully finished basement makes the perfect entertainment space with a large family room, wet bar w/ sink, 4th bedroom w/ a walk-in closet & easy access to a 4pc bathroom. A large HOME GYM area or optional 5th bedroom nicely completes this level.West Hillhurst is a highly sought-after inner-city community known for its tree-lined streets, proximity to the Bow River pathways, and easy access to downtown. Enjoy walking or biking along the river, visiting nearby parks and playgrounds, or spending time in the popular Kensington district with its boutique shops, cafés, and restaurants. The community also features the West Hillhurst Community Association with fitness facilities, programs, and year-round activities .Commuting is effortless with quick access to Crowchild Trail, Memorial Drive, and downtown Calgary just minutes away. This is the perfect house and community to call home!Currently under construction with an estimated completion mid July to early August, there is still time to customize the finishes in this elegant upscale home! (id:50315)

Property Summary
Property Type

Single Family

Building Type

Storey

2

Community Name

Subdivision Name

West Hillhurst

Title

 

Land Size
2189Sq.Ft.
Built in
2026
Annual Property Taxes
$
Parking Type
Detached Garage
Published
4 days
Building
Bedrooms
Total
5
Below Grade
 
Bathrooms
Total
5
Partial
1
Interior Features
Appliances Included

Refrigerator, Cooktop - Gas, Dishwasher, Microwave, Oven - Built-In

Flooring

Hardwood, Ceramic Tile, Vinyl Plank

Basement Features

Finished, Full

Basement Type

Finished, Full

Building Features
Features

Back lane, Wet bar, Closet Organizers

Foundation Type

Poured Concrete

Architectural Style

Construction Material

Poured concrete, Wood frame

Floor Space
2189.00Sq.Ft.
Total Finished Area
2189.00Sq.Ft.
Structures
Concrete, Stucco
Heating & Cooling
Cooling
None
Fireplace
Heating Type
Forced air, Natural gas
Exterior Features
Exterior Finish
Concrete, Stucco
Neighbourhood Features
Amenities Nearby
 
 
Parking Type
Detached Garage
Total Parking Spaces
2
Interested in this property?
Kuldip Singh Parmar
Kuldip Singh Parmar
Associate
Balpreet Tehri
Balpreet Tehri
Associate
Have a question or just want to learn a bit more about the property? That's what I'm here for! Would you like me to send you more information.
By using our site, you agree to our Terms of use and Privacy Policy     Dismiss