$1,295,000
6 beds 4 baths
2527 Sq.Ft.
236 Mt Sparrowhawk Place SE, McKenzie Lake, Calgary, Alberta, T2Z2G8
MLS® Number: A2294294

Single Family House for Sale in Mt Sparrowhawk Place SE McKenzie Lake Calgary

Property Information

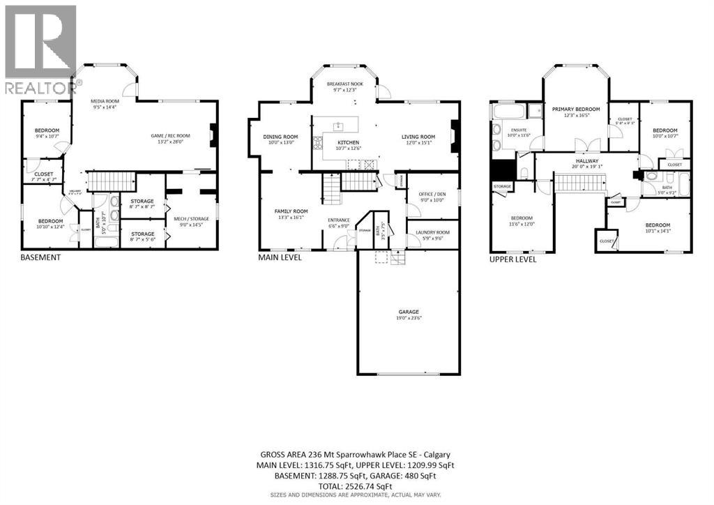
OPEN HOUSE SATURDAY AND SUNDAY, MARCH 21, 22, 2:00 pm - 4:00 pm. Rarely does a property offer this exceptional combination of size, location, and extensive upgrades. With over 3,600 sq ft of developed living space, this 6-bedroom home is ideally suited for large or multi-generational families seeking both comfort and functionality.Situated on a quiet cul-de-sac and set on an expansive 12,000+ sq ft lot, this home also features a fully developed walk-out basement, providing additional living space and flexibility for a variety of needs.The location is outstanding—within walking distance to schools and the lake—making daily routines convenient and offering year-round recreational opportunities. The generous yard provides ample space for outdoor enjoyment, while the interior is designed for both everyday living and entertaining, including a dedicated theatre room perfect for family movie nights.Extensively renovated with over $200,000 in upgrades, this home offers peace of mind and modern appeal. Recent improvements include a new roof, furnace, hot water tank, air conditioning, windows, kitchen, appliances, luxury vinyl plank flooring, lighting, fresh paint throughout, new gravel in the back yard and so much more!This is a rare opportunity to own a beautifully updated, spacious home in a highly desirable location—perfect for families looking to grow, gather, and enjoy. (id:50315)

Property Summary
Property Type

Single Family

Building Type

Storey

2

Community Name

Golf Course Development, Lake Privileges, Fishing

Subdivision Name

McKenzie Lake

Title

 

Land Size
2527Sq.Ft.
Built in
1991
Annual Property Taxes
$6242
Parking Type
Attached Garage
Published
1 days
Building
Bedrooms
Total
6
Below Grade
 
Bathrooms
Total
4
Partial
1
Interior Features
Appliances Included

Refrigerator, Water softener, Cooktop - Gas, Dishwasher, Microwave, Compactor, Garburator, Oven - Built-In, Hood Fan, Window Coverings, Garage door opener, Washer & Dryer

Flooring

Tile, Carpeted, Vinyl Plank

Basement Features

Finished, Full, Walk out

Basement Type

Finished, Full, Walk out

Building Features
Features

Cul-de-sac, Gazebo

Foundation Type

Poured Concrete

Architectural Style

Construction Material

Floor Space
2527.00Sq.Ft.
Total Finished Area
2527.00Sq.Ft.
Structures
Stucco
Heating & Cooling
Cooling
Central air conditioning
Fireplace
Heating Type
Forced air, Natural gas
Exterior Features
Exterior Finish
Stucco
Neighbourhood Features
Amenities Nearby
 
 
Parking Type
Attached Garage
Total Parking Spaces
4
Interested in this property?
Kuldip Singh Parmar
Kuldip Singh Parmar
Associate
Balpreet Tehri
Balpreet Tehri
Associate
Have a question or just want to learn a bit more about the property? That's what I'm here for! Would you like me to send you more information.
By using our site, you agree to our Terms of use and Privacy Policy     Dismiss