$1,399,000
4 beds 4 baths
1967 Sq.Ft.
2232 30 Avenue SW, Richmond, Calgary, Alberta, T2T1R8
MLS® Number: A2295237

Single Family House for Sale in Avenue SW Richmond Calgary

Property Information

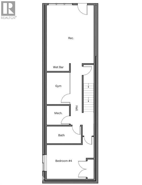
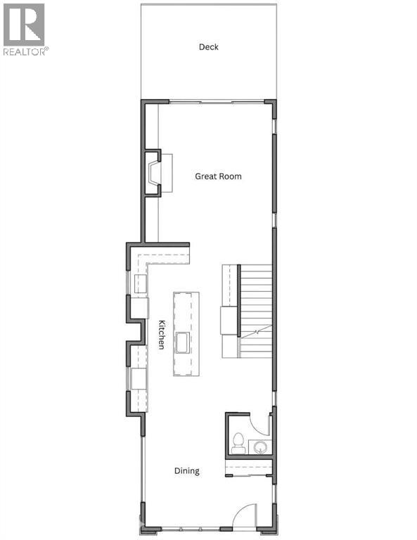
Modern luxury in the heart of Richmond. This exceptional detached two-story home offers a seamless open-concept floor plan designed for both sophisticated entertaining and comfortable family living. The main level is anchored by a gourmet chef’s kitchen featuring a massive quartz island, premium finishes, and a spacious dining area that flows into the inviting living room with a sleek gas fireplace. A convenient powder room completes this level.The upper floor is thoughtfully designed with a large laundry room and three generous bedrooms—each boasting its own private walk-in closet. The primary retreat is a true sanctuary, featuring an expansive layout and a spa-like five-piece ensuite with a deep soaker tub and double vanity.Rare for the area, this full walkout home leads to a professionally finished lower level. Enjoy a dedicated home gym, a stylish wet bar, a large recreation room, and a fourth guest bedroom. Outside, the walkout access provides a seamless transition to the backyard and the double detached garage. Experience the perfect blend of inner-city convenience and high-end craftsmanship just minutes from Marda Loop and downtown. (id:50315)

Property Summary
Property Type

Single Family

Building Type

Storey

2

Community Name

Subdivision Name

Richmond

Title

 

Land Size
1967Sq.Ft.
Built in
2026
Annual Property Taxes
$
Parking Type
Detached Garage
Published
1 days
Building
Bedrooms
Total
4
Below Grade
 
Bathrooms
Total
4
Partial
1
Interior Features
Appliances Included

Refrigerator, Dishwasher, Stove, Oven, Microwave, Hood Fan, Garage door opener

Flooring

Tile, Hardwood, Carpeted

Basement Features

Finished, Full, Walk out

Basement Type

Finished, Full, Walk out

Building Features
Features

Other, Back lane, Wet bar, Closet Organizers, No Animal Home, No Smoking Home

Foundation Type

Poured Concrete

Architectural Style

Construction Material

Wood frame

Floor Space
1967.00Sq.Ft.
Total Finished Area
1967.00Sq.Ft.
Structures
Heating & Cooling
Cooling
See Remarks
Fireplace
Heating Type
Forced air
Exterior Features
Exterior Finish
Neighbourhood Features
Amenities Nearby
 
 
Parking Type
Detached Garage
Total Parking Spaces
2
Interested in this property?
Kuldip Singh Parmar
Kuldip Singh Parmar
Associate
Balpreet Tehri
Balpreet Tehri
Associate
Have a question or just want to learn a bit more about the property? That's what I'm here for! Would you like me to send you more information.
By using our site, you agree to our Terms of use and Privacy Policy     Dismiss