$1,545,000
6 beds 7 baths
2950 Sq.Ft.
2231 2 Avenue NW, West Hillhurst, Calgary, Alberta, T2N0H1
MLS® Number: A2292398

Single Family House for Sale in Avenue NW West Hillhurst Calgary

Property Information

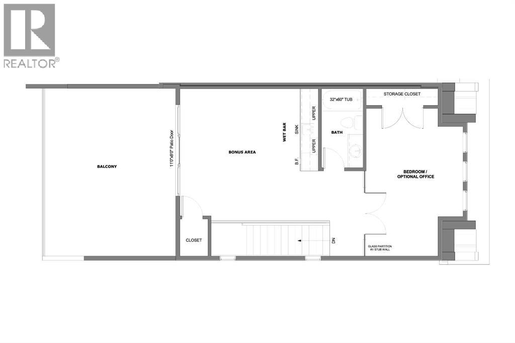
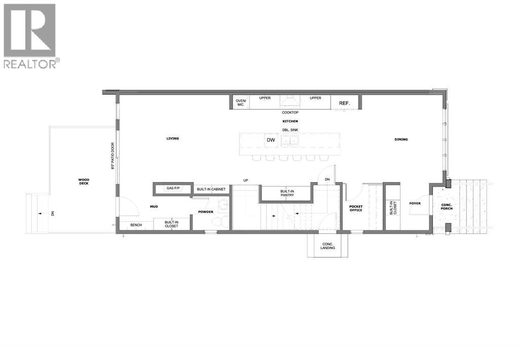
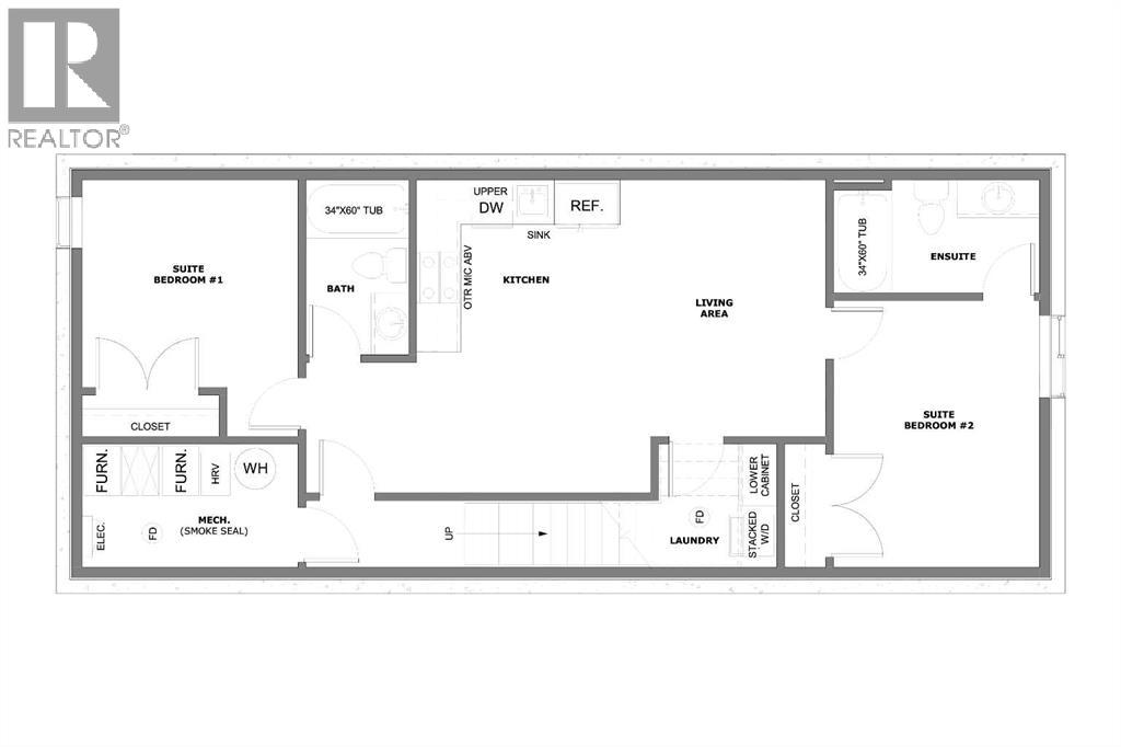
Move in Ready in June!! Modern, calm, & thoughtfully composed. This brand WEST HILLHURST semi-detached home blends clean architecture w/ warm, natural finishes across THREE LEVELS, including a loft level w/ bonus area, bright bed/office, & balcony/ DOWNTOWN VIEWS, SOUTH BACKYARD, plus a fully developed LEGAL 2-BED + 2-BATH LOWER SUITE (approved by the city). Step inside to a welcoming foyer w/ plenty of space to move around & manage shoes & coats, neatly stored in the built-in closet. A pocket office w/ a built-in desk provides a convenient spot for work-from-home tasks. The front dining area offers a quiet place for morning coffee & a lovely backdrop for family meals. The kitchen truly steals the show w/ the oversized island w/ seating for quick breakfasts, charcuterie nights, or laptop catch-ups. Cabinetry is full-height w/ lots of lower drawers and a panelled built-in fridge for a modern vibe. The working wall keeps cookware & small appliances tucked away, while quartz surfaces read clean & durable. At the back, the family room is all about comfort. The gas fireplace w/ simple built-ins gives you space for art & books, while the layout makes TV viewing effortless. Sliding patio doors to the backyard floods the room w/ light & sets up easy indoor-outdoor living. The rear mudroom is exactly where you want it, fitted w/ custom storage & a bench so shoes, bags, & dog leashes have a home. A discreet powder room completes this level.Upstairs, the PRIMARY SUITE feels like a retreat at the end of the day. You get a true walk-in closet & an ensuite that checks every box: DOUBLE VANITY, an oversized shower, & a FREESTANDING TUB that actually invites a soak. The secondary bedrooms features their own 4-pc ensuites & built-in closets giving families the flexibily they desreve. The LAUNDRY ROOM up here saves steps & keeps the main floor tidy.The loft level adds space to spread out across the home, w/ a bright & spacious bedroom or optional office w/ glass partition wal l & French door, w/ built-in storage. The bonus rec area features a modern & upscale wet bar, w/ access to the oversized balcony w/ downtown views! There’s also a full 4-pc bath on this level for convenience! Downstairs, the legal 2-BED + 2 BATH suite keeps the modern & upscale feel going w/ a full kitchen w/ quartz & stainless steel appliance package, good-sized living area, separate laundry, a primary bed w/ private ensuite bath, & a second bed w/ quick access to the main 4-pc bath.Walk to neighbourhood parks for quick dog runs & fresh air. Schools are excellent here – Hillhurst School for K-6, Queen Elizabeth Junior High & Senior High just up the road, & William Aberhart High School for advanced academics & sports programs. Weekend coffee, local bakeries, & casual dining are all within minutes, & downtown is an easy commute by car, bike, or transit. River pathways make a perfect loop for a jog or sunset stroll. It’s the right mix of community feel & city access. (id:50315)

Property Summary
Property Type

Single Family

Building Type

Storey

3

Community Name

Subdivision Name

West Hillhurst

Title

 

Land Size
2950Sq.Ft.
Built in
2026
Annual Property Taxes
$
Parking Type
Detached Garage
Published
5 days
Building
Bedrooms
Total
6
Below Grade
 
Bathrooms
Total
7
Partial
1
Interior Features
Appliances Included

Refrigerator, Cooktop - Gas, Dishwasher, Stove, Oven, Microwave, Microwave Range Hood Combo, Hood Fan, Garage door opener

Flooring

Tile, Hardwood, Vinyl Plank

Basement Features

Finished, Full, Separate entrance, Suite

Basement Type

Finished, Full, Separate entrance, Suite

Building Features
Features

Closet Organizers, Gas BBQ Hookup

Foundation Type

Poured Concrete

Architectural Style

Construction Material

Poured concrete, Wood frame

Floor Space
2950.00Sq.Ft.
Total Finished Area
2950.00Sq.Ft.
Structures
Concrete
Heating & Cooling
Cooling
See Remarks
Fireplace
Heating Type
Forced air
Exterior Features
Exterior Finish
Concrete
Neighbourhood Features
Amenities Nearby
 
 
Parking Type
Detached Garage
Total Parking Spaces
2
Interested in this property?
Kuldip Singh Parmar
Kuldip Singh Parmar
Associate
Balpreet Tehri
Balpreet Tehri
Associate
Have a question or just want to learn a bit more about the property? That's what I'm here for! Would you like me to send you more information.
By using our site, you agree to our Terms of use and Privacy Policy     Dismiss