$621,600
3 beds 2 baths
1126 Sq.Ft.
2202, 1850 80 Street SW, Springbank Hill, Calgary, Alberta, T3H3W5
MLS® Number: A2296637

Single Family House for Sale in Street SW Springbank Hill Calgary

Property Information

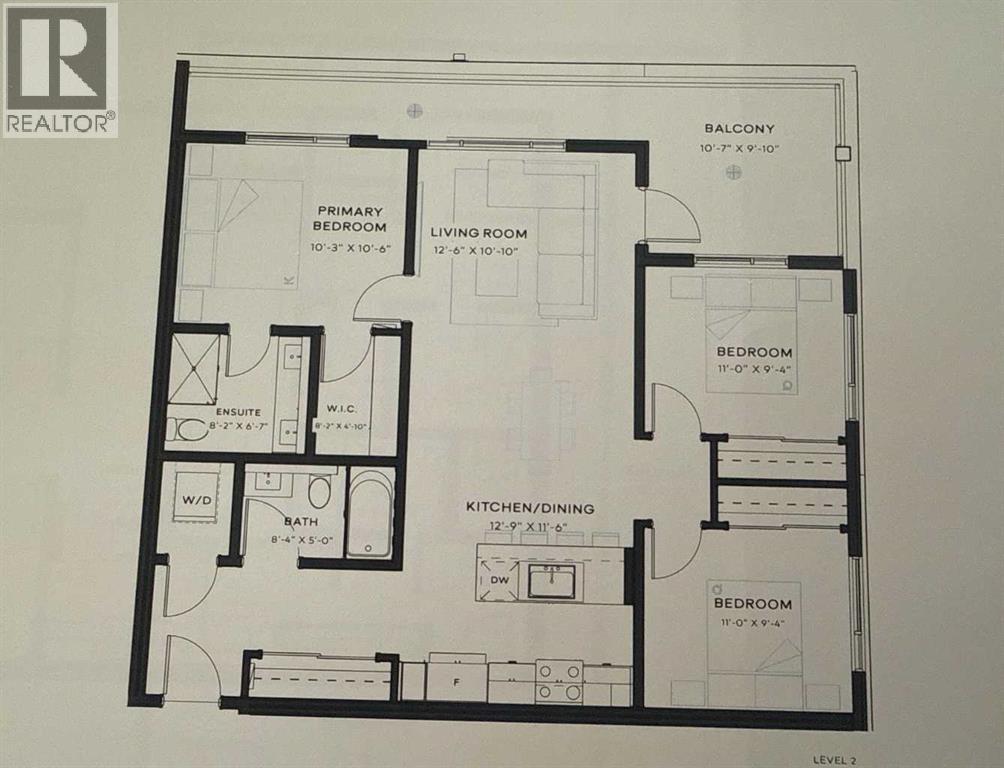
Welcome to Aspen Village by Vesta Properties! This is modern urban living in a thoughtfully designed 3-bedroom residence offering exceptional functionality, contemporary finishes, and a vibrant lifestyle setting. Featuring an open-concept layout, this home combines comfort and style with a spacious living area and designer kitchen ideal for both everyday living and entertaining.The sleek kitchen showcases quartz countertops, full-height cabinetry, under-mount sinks, and a large central island with pendant lighting. Energy-efficient stainless-steel appliances and in-suite laundry provide both convenience and modern efficiency. The primary suite offers a private retreat complete with a walk-in closet and elegant ensuite, while two additional bedrooms provide flexibility for family living, guests, or a stylish home office. A well-appointed main bathroom features clean modern detailing, quartz surfaces, and timeless fixtures.Durable luxury vinyl plank flooring flows throughout, complemented by curated interior palettes and contemporary ceiling finishes. Enjoy outdoor relaxation and entertaining on your oversized private balcony. Built with quality construction standards including triple-pane windows, engineered floor systems, and enhanced soundproofing, this home offers comfort, quiet, and energy efficiency.Residents will have the opportunity to join the members-only Aspen Club, a private amenity hub featuring collaborative workspaces, lounge areas, a state-of-the-art fitness centre and spin studio, yoga and games rooms, and beautifully designed rooftop gathering spaces. Aspen Village will also feature a vibrant Urban Village with over 60,000 sq. ft. of planned retail and services, including boutique shopping, cafés, dining, wellness studios, daycare, medical services, and everyday conveniences—creating a truly connected and walkable community atmosphere.Ideally positioned close to transit, parks, shopping, and key lifestyle amenities, this residence pre sents an exceptional opportunity for families, downsizers, or investors seeking long-term value in one of Calgary’s most exciting emerging communities. Anticipated possession is scheduled for 2027. (id:50315)

Property Summary
Property Type

Single Family

Building Type

Storey

6

Community Name

Pets Allowed With Restrictions

Subdivision Name

Springbank Hill

Title

 

Land Size
1126Sq.Ft.
Built in
2027
Annual Property Taxes
$0
Parking Type
Underground
Published
7 days
Building
Bedrooms
Total
3
Below Grade
 
Bathrooms
Total
2
Partial
0
Interior Features
Appliances Included

Refrigerator, Dishwasher, Stove, Washer/Dryer Stack-Up

Flooring

Vinyl Plank

Basement Features

Basement Type

Building Features
Features

Foundation Type

Architectural Style

Construction Material

Poured concrete

Floor Space
1126.00Sq.Ft.
Total Finished Area
1126.00Sq.Ft.
Structures
Concrete
Heating & Cooling
Cooling
Central air conditioning
Fireplace
Heating Type
Baseboard heaters
Exterior Features
Exterior Finish
Concrete
Neighbourhood Features
Amenities Nearby
 
 
Parking Type
Underground
Total Parking Spaces
1
Interested in this property?
Kuldip Singh Parmar
Kuldip Singh Parmar
Associate
Balpreet Tehri
Balpreet Tehri
Associate
Have a question or just want to learn a bit more about the property? That's what I'm here for! Would you like me to send you more information.
By using our site, you agree to our Terms of use and Privacy Policy     Dismiss