$3,150,000
 
5016 Sq.Ft.
2114 4 Street NE, Winston Heights/Mountview, Calgary, Alberta, T2E1S9
MLS® Number: A2266899

Multi-family House for Sale in Street NE Winston Heights/Mountview Calgary

Property Information

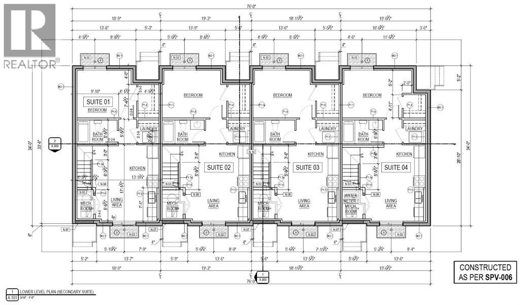
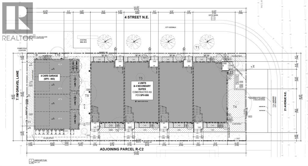
Exceptional Investment Opportunity in Winston Heights – Brand-New, High-Yield 4-Plex!Discover an extraordinary chance to elevate your real estate portfolio with this architecturally striking, purpose-built 4-plex located in the heart of Winston Heights; one of Calgary’s most desirable inner-city communities. Renowned for its central location, proximity to downtown, strong rental demand, and vibrant character, Winston Heights provides the perfect setting for this high-performing income property.This newly constructed development features four modern townhomes, each offering three spacious bedrooms and separate mechanical rooms for upper and lower units. Every townhome is complemented by a fully legal one-bedroom basement suite, bringing the total to eight self-contained rental units, each with a private entrance and independent mechanical systems. This rare configuration delivers exceptional income potential and operational flexibility.The property’s curb appeal is undeniable; showcasing timeless architecture with clean lines, premium materials and a cohesive, boutique aesthetic. Professional landscaping, modern exterior lighting and a unified facade create a sophisticated and enduring impression.Inside, each suite is finished with high-quality, low-maintenance materials designed for style, comfort, and longevity: quartz countertops, stainless steel appliances, luxury vinyl plank flooring, and oversized energy-efficient windows—all contributing to lower operating costs and long-term tenant appeal.Ideally located just minutes from downtown Calgary, with quick access to major roadways, public transit, parks, schools, and everyday amenities, this property offers unmatched convenience for tenants and impressive returns for investors.This 8-unit asset (4 townhomes, each with a legal suite) may also qualify for CMHC’s MLI Select program, potentially allowing for reduced down payments and extended amortizations (subject to lender and CMHC approval).Don’t miss your opportunity to own one of Calgary’s most visually stunning and intelligently designed multi-family investments. Contact us today for full details! (id:50315)

Property Summary
Property Type

Multi-family

Building Type

Storey

Community Name

Subdivision Name

Winston Heights/Mountview

Title

 

Land Size
5016Sq.Ft.
Built in
2026
Annual Property Taxes
$4014
Parking Type
Detached Garage, Garage
Published
53 days
Building
Bedrooms
Total
Below Grade
 
Bathrooms
Total
Partial
Interior Features
Appliances Included

Refrigerator, Dishwasher, Stove, Microwave, Hood Fan, Washer & Dryer

Flooring

Basement Features

Finished, Full, Separate entrance

Basement Type

Finished, Full, Separate entrance

Building Features
Features

Foundation Type

Poured Concrete

Architectural Style

Construction Material

Floor Space
5016.00Sq.Ft.
Total Finished Area
5016.00Sq.Ft.
Structures
Heating & Cooling
Cooling
Fireplace
Heating Type
Forced air
Exterior Features
Exterior Finish
Neighbourhood Features
Amenities Nearby
 
 
Parking Type
Detached Garage, Garage
Total Parking Spaces
4
Interested in this property?
Kuldip Singh Parmar
Kuldip Singh Parmar
Associate
Balpreet Tehri
Balpreet Tehri
Associate
Have a question or just want to learn a bit more about the property? That's what I'm here for! Would you like me to send you more information.
By using our site, you agree to our Terms of use and Privacy Policy     Dismiss