$1,150,000
3 beds 1 baths
1947 Sq.Ft.
2105A 7 Street NE, Winston Heights/Mountview, Calgary, Alberta, T2E4C7
MLS® Number: A2272545

Single Family House for Sale in A Street NE Winston Heights/Mountview Calgary

Property Information

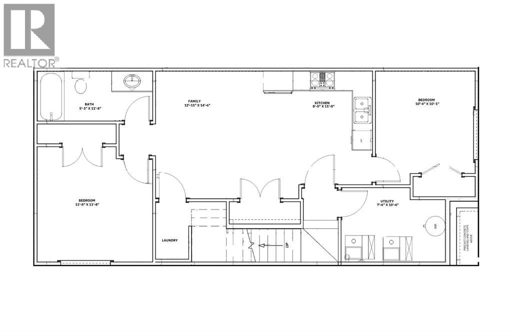
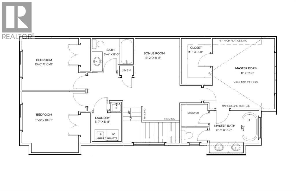
Discover this stunning UNDER-CONSTRUCTION NEW SEMI-DETACHED INFILL featuring a west-facing backyard and an unbeatable location within walking distance to The Winston Golf Club. Step inside and you’re immediately welcomed by an open and airy main floor with soaring 10 ft ceilings, 8 ft doors and hardwood flooring throughout the main and upper levels—a space that instantly feels like home. The bright, spacious dining area with large windows sets the perfect stage for hosting dinner parties or enjoying relaxed family meals. The chef-inspired kitchen is a true showpiece, featuring high-end stainless steel appliances, including a gas cooktop and built-in oven/microwave combo, a massive quartz island with breakfast bar, and sleek full-height custom cabinetry for ample storage. The walk-through pantry with built-in shelving and direct access to the rear mudroom adds everyday convenience. At the back, the inviting living room centres around a cozy fireplace and large 10 ft wide sliding door that open to the west backyard, filling the home with natural light. A stylish designer powder room completes the main level. Upstairs, you’ll find three spacious bedrooms, each thoughtfully designed for comfort. The primary suite is a luxurious retreat, featuring a spa-inspired ensuite with a heated floor, soaking tub, glass-enclosed shower, dual sinks, and a walk-in closet that offers generous storage. Two additional bedrooms, a modern 4-piece bath, a tiled laundry room with sink, and a versatile bonus space—ideal as an office, reading nook, or play area—complete the upper level. The fully developed LEGAL 2-BEDROOM SUITE (subject to permits & approval by the city) on the lower level offers flexibility for a live-in nanny, extended family, or rental income. With a private side entrance, this suite includes a well-appointed kitchen with full-height cabinetry and quartz countertops, stainless steel appliances, a spacious living area, modern 4-piece bath, separate laundry, and two generous bedrooms. Outside, enjoy your private backyard oasis with a wooden deck and full fencing, perfect for relaxation or entertaining. The double detached garage provides ample room for vehicles, tools, and storage. Located in the vibrant community of Winston Heights, you’ll love the friendly atmosphere and nearby amenities—top-rated schools, grocery stores, recreation and aquatic centre, golf course, soccer fields, tennis courts, and off-leash dog parks. Scenic walking and cycling pathways are just steps away, while shopping, dining, and downtown Calgary are only a short drive with easy access to 16 Ave and Deerfoot Trail. Both sides are available. (id:50315)

Property Summary
Property Type

Single Family

Building Type

Storey

2

Community Name

Golf Course Development

Subdivision Name

Winston Heights/Mountview

Title

 

Land Size
1947Sq.Ft.
Built in
2026
Annual Property Taxes
$
Parking Type
Detached Garage
Published
7 days
Building
Bedrooms
Total
3
Below Grade
 
Bathrooms
Total
1
Partial
0
Interior Features
Appliances Included

Refrigerator, Cooktop - Gas, Range - Electric, Dishwasher, Oven - Built-In, Hood Fan, Washer/Dryer Stack-Up

Flooring

Hardwood, Ceramic Tile, Vinyl Plank

Basement Features

Finished, Full, Separate entrance, Suite

Basement Type

Finished, Full, Separate entrance, Suite

Building Features
Features

Back lane, Gas BBQ Hookup

Foundation Type

Poured Concrete

Architectural Style

Construction Material

Wood frame

Floor Space
1947.00Sq.Ft.
Total Finished Area
1947.00Sq.Ft.
Structures
Stucco
Heating & Cooling
Cooling
See Remarks
Fireplace
Heating Type
Forced air, Natural gas
Exterior Features
Exterior Finish
Stucco
Neighbourhood Features
Amenities Nearby
 
 
Parking Type
Detached Garage
Total Parking Spaces
2
Interested in this property?
Kuldip Singh Parmar
Kuldip Singh Parmar
Associate
Balpreet Tehri
Balpreet Tehri
Associate
Have a question or just want to learn a bit more about the property? That's what I'm here for! Would you like me to send you more information.
By using our site, you agree to our Terms of use and Privacy Policy     Dismiss