$814,900
3 beds 3 baths
 
210 MERRITT COURT, North Middlesex (Parkhill), Ontario, N0M2K0
MLS® Number: X12749052

Single Family House for Sale in MERRITT COURT North Middlesex (Parkhill)

Property Information

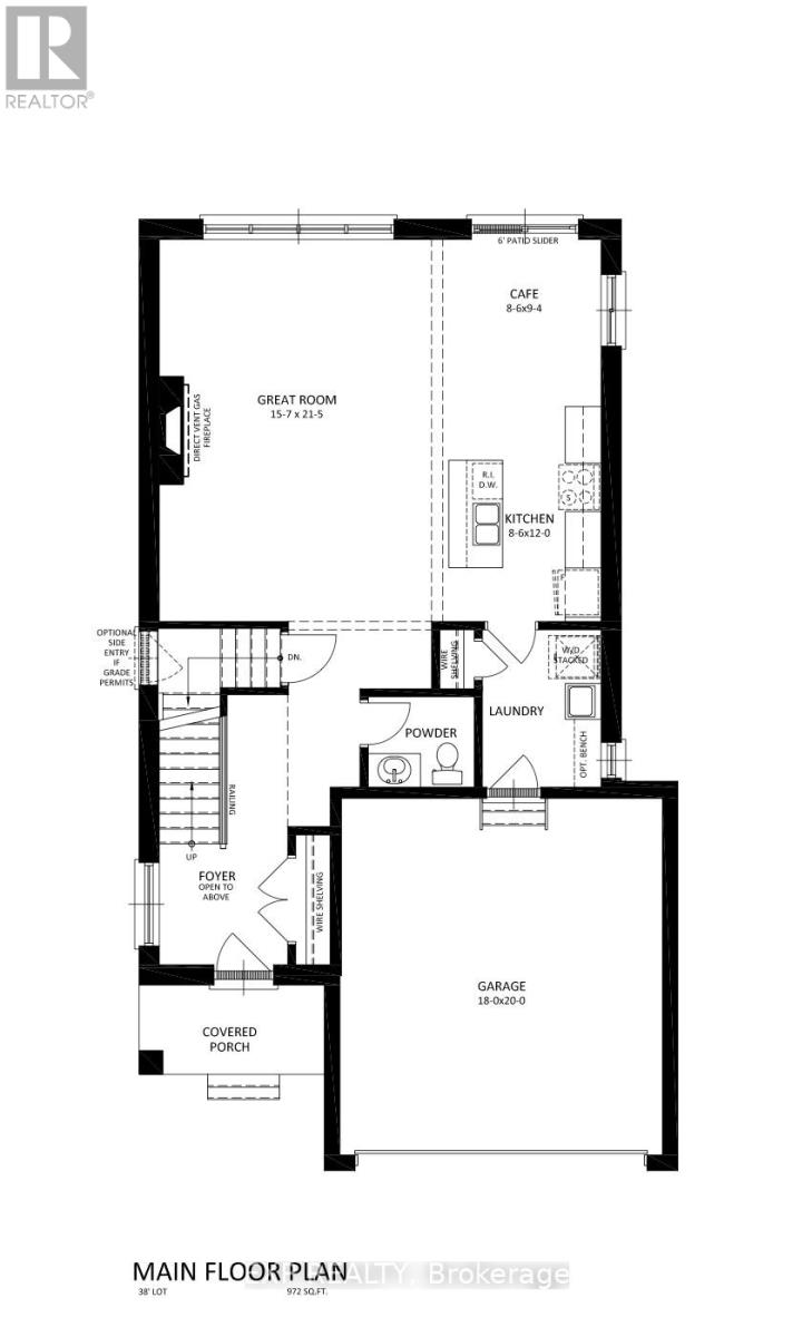
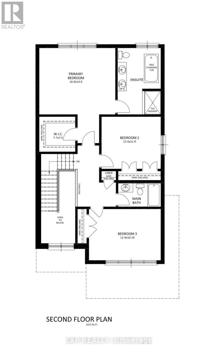
Welcome to Merritt Estates, where your dream home awaits in the beautiful community of Parkhill! this two-storey Xistence floor plan spans 1,995 sq. ft. and is a blank canvas, ready for your custom touches to make it truly yours. Step inside to discover a bright and airy open entrance foyer that sets the stage for the elegance that lies beyond. The main level boasts a stunning open-concept design that flows seamlessly from the spacious great room to the gourmet kitchen. Here, you'll find sleek quartz countertops, an island perfect for casual dining or entertaining, and sliding glass patio doors that lead directly to your private backyard oasis. Upstairs, the second level offers three generous bedrooms, including a luxurious primary suite complete with a five-piece ensuite bathroom and a large walk-in closetyour personal retreat at the end of the day. Also on this level is a convenient laundry room, making everyday chores a breeze. With XO Homes, every detail of your home can be tailored to your preferences. Choose from a variety of floor plans, each fully customizable to meet your unique needs. Don't miss this opportunity to live in a community that offers the perfect blend of tranquility and modern convenience. Contact us for more information on available lots, models, and our full builder package. Come fall in love with Merritt Estates and build the home you've always dreamed of! (id:50315)

Property Summary
Property Type

Single Family

Building Type

Storey

2

Community Name

Subdivision Name

Title

 

Land Size
 
Built in
Annual Property Taxes
$0
Parking Type
Attached Garage, Garage
Published
14 days
Building
Bedrooms
Total
3
Below Grade
 
Bathrooms
Total
3
Partial
1
Interior Features
Appliances Included

Flooring

Basement Features

Unfinished, Full

Basement Type

Unfinished, Full

Building Features
Features

Cul-de-sac, Irregular lot size, Sump Pump

Foundation Type

Poured Concrete

Architectural Style

Construction Material

Floor Space
.00
Total Finished Area
.00
Structures
Brick, Vinyl siding
Heating & Cooling
Cooling
Central air conditioning
Fireplace
Heating Type
Forced air, Natural gas
Exterior Features
Exterior Finish
Brick, Vinyl siding
Neighbourhood Features
Amenities Nearby
 
 
Parking Type
Attached Garage, Garage
Total Parking Spaces
6
Interested in this property?
Kuldip Singh Parmar
Kuldip Singh Parmar
Associate
Balpreet Tehri
Balpreet Tehri
Associate
Have a question or just want to learn a bit more about the property? That's what I'm here for! Would you like me to send you more information.
By using our site, you agree to our Terms of use and Privacy Policy     Dismiss