$499,900
3 beds 3 baths
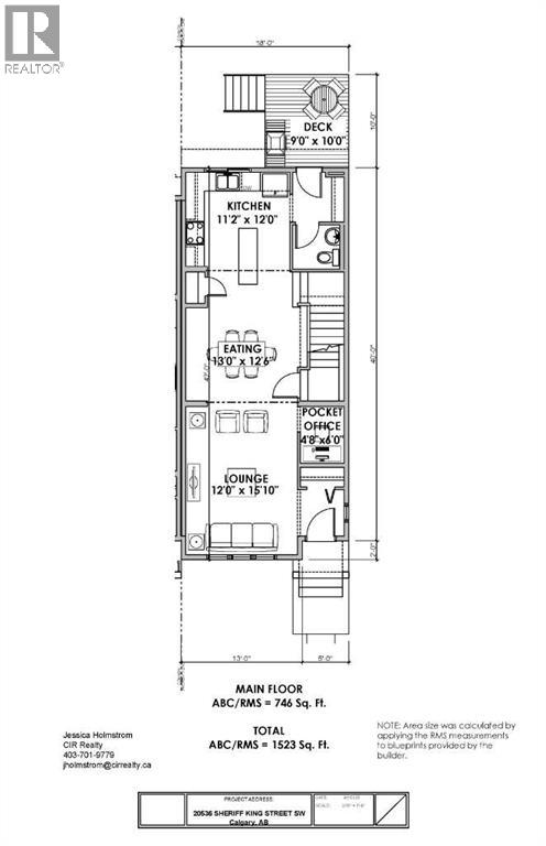
1523 Sq.Ft.
20536 Sheriff King Street SW, Belmont, Calgary, Alberta, T2X4B1
MLS® Number: A2290618

Single Family House for Sale in Sheriff King Street SW Belmont Calgary

Property Information

END-UNIT TOWNHOME WITH NO CONDO FEES — this unit is built for a true lock-and-leave lifestyle—clean, efficient, and intentionally designed so your life fits without friction. No projects, no placeholder spaces, no “we’ll deal with that later.” And yes — WINDOW COVERINGS ARE ALREADY INCLUDED, because move-in should actually mean move-in.The main floor gets straight to the point. A well-scaled kitchen delivers QUARTZ COUNTERS, 42" UPPER CABINETRY, A BUILT-IN MICROWAVE, CHIMNEY-STYLE HOOD FAN, and a Silgranit undermount kitchen sink—details that feel elevated without trying to impress anyone but you. The dining and living areas flow naturally, making everyday routines feel easy and entertaining feel unforced. And then there’s the POCKET OFFICE—quietly one of the smartest decisions in the home. Not a corner, not a compromise. A DEDICATED SPACE for work-from-home days, admin, studying, or simply keeping life organized without spreading it across the kitchen table. Upstairs, three bedrooms are arranged around a CENTRAL BONUS ROOM, creating separation without wasted space. The primary bedroom includes a private ensuite and walk-in closet, while upper-floor laundry (WASHER AND DRYER INCLUDED) keeps daily life contained where it belongs. The unfinished basement with BATHROOM ROUGH-IN gives you flexibility for the future—storage now, options later—without forcing decisions before you’re ready. REAR LANE ACCESS WITH A GRAVEL PARKING PAD keeps ownership simple and maintenance low. Belmont keeps you close to what matters without the sprawl: NEW PARKS AND PLAYGROUNDS ALREADY IN PLACE, the future library and field house on the way, and quick access to both Macleod Trail and the Ring Road. Whether you’re stepping out for coffee or staying in for a quiet weekend, the balance here just works—modern, manageable, and ready for THE KIND OF OWNERSHIP THAT DOESN’T COME WITH MONTHLY FEES. Come see how naturally this one fits!• PLEASE NOTE: Photos are of a DIFFERENT Spec Home of t he same model – fit and finish may differ. Interior selections and floorplans shown in photos. Kitchen appliances are included, and will be installed prior to possession. (id:50315)

Property Summary
Property Type

Single Family

Building Type

Storey

2

Community Name

Subdivision Name

Belmont

Title

 

Land Size
1523Sq.Ft.
Built in
2026
Annual Property Taxes
$
Parking Type
Parking Pad
Published
27 days
Building
Bedrooms
Total
3
Below Grade
 
Bathrooms
Total
3
Partial
1
Interior Features
Appliances Included

Refrigerator, Range - Electric, Dishwasher, Microwave, Hood Fan, Window Coverings, Washer/Dryer Stack-Up

Flooring

Carpeted, Vinyl Plank

Basement Features

Unfinished, Full

Basement Type

Unfinished, Full

Building Features
Features

Back lane

Foundation Type

Poured Concrete

Architectural Style

Construction Material

Wood frame

Floor Space
1523.00Sq.Ft.
Total Finished Area
1523.00Sq.Ft.
Structures
Vinyl siding
Heating & Cooling
Cooling
None
Fireplace
Heating Type
Forced air, Natural gas, Other
Exterior Features
Exterior Finish
Vinyl siding
Neighbourhood Features
Amenities Nearby
 
 
Parking Type
Parking Pad
Total Parking Spaces
2
Interested in this property?
Kuldip Singh Parmar
Kuldip Singh Parmar
Associate
Balpreet Tehri
Balpreet Tehri
Associate
Have a question or just want to learn a bit more about the property? That's what I'm here for! Would you like me to send you more information.
By using our site, you agree to our Terms of use and Privacy Policy     Dismiss