$749,000
4 beds 4 baths
1790 Sq.Ft.
18 Tuscany Summit Green NW, Tuscany, Calgary, Alberta, T3L0B8
MLS® Number: A2297629

Single Family House for Sale in Tuscany Summit Green NW Tuscany Calgary

Property Information

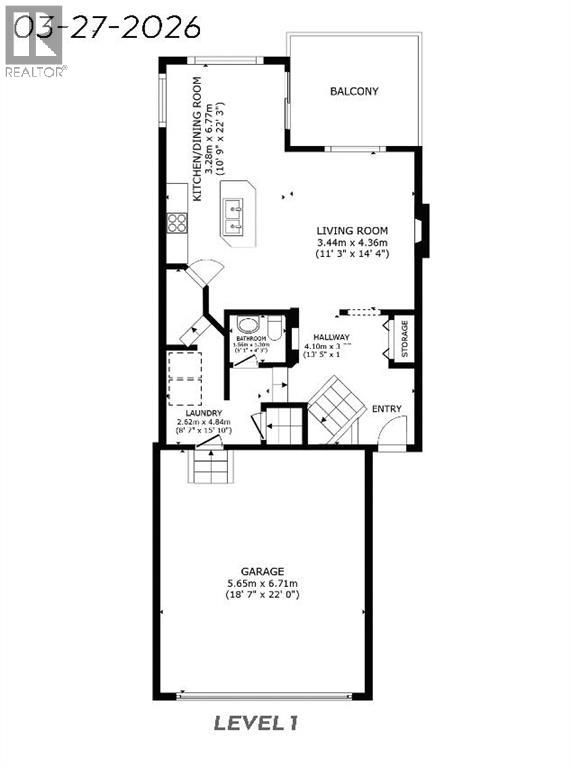
Welcome to a beautifully maintained family home offering an exceptional combination of comfort, functionality, and lifestyle in one of NW Calgary’s most desirable communities. Situated on a quiet street just steps from green space, this home is perfect for families who enjoy outdoor living, whether it’s walking the dog or enjoying daily exercise. The southeast-facing backyard is filled with natural sunlight and features a professionally installed playground with a soft rubber surface—creating a safe and fun environment for children. Inside, you are welcomed by an open-concept main floor filled with natural light from large southeast-facing windows. The inviting living room features a cozy gas fireplace, while the kitchen is equipped with a gas stove and powerful range hood—perfect for home chefs. A convenient walkthrough pantry connects seamlessly to the garage and laundry area, where the laundry machines have been recently updated. Stay comfortable year-round with central air conditioning, keeping the home cool during Calgary’s warm summer months. Upstairs, the home offers a thoughtfully designed layout featuring an oversized bonus room—ideal for family gatherings, a media space, or a kids’ play area. The spacious primary bedroom includes a bright ensuite with large windows that bring in beautiful natural light. Two additional well-sized bedrooms each feature customized closet organizers, making it easy to keep everything neat and organized. A full shared bathroom completes the upper level. The fully developed basement expands your living space with a large recreation room, featuring a wet bar with a bar fridge—perfect for entertaining. A generous bedroom and a high-end full bathroom with in-floor heating provide added comfort and flexibility for guests or extended family. Location is a standout feature of this home. You are just 3 minutes from the Tuscany LRT station and only 2 minutes to Crowchild Trail, with quick access to Stoney Trail, making commuting an ywhere in the city convenient. Tuscany also offers excellent access to schools for families, including Tuscany School and Eric Harvie School (K–4), Twelve Mile Coulee School (Grades 4–9) within the community, St. Basil School (K–9) for Catholic education, and Bowness High School (Grades 10–12) just a short drive away. Residents also enjoy access to the Tuscany Club, a private community facility offering year-round amenities including a splash park, skating rink, tennis courts, and multiple playgrounds—making it an ideal environment for families. Recent upgrades include fresh paint throughout the entire home (2026), updated laundry machines (2024), Range Hood and Refrigerator (2025) , basement development (2016), and the professionally installed backyard playground with rubber flooring (2020). This is a rare opportunity to own a well-upgraded, move-in ready home in a highly sought-after, family-friendly community. (id:50315)

Property Summary
Property Type

Single Family

Building Type

Storey

2

Community Name

Subdivision Name

Tuscany

Title

 

Land Size
1790Sq.Ft.
Built in
2008
Annual Property Taxes
$4644.5
Parking Type
Attached Garage, Concrete
Published
2 days
Building
Bedrooms
Total
4
Below Grade
 
Bathrooms
Total
4
Partial
1
Interior Features
Appliances Included

Washer, Refrigerator, Oven - Electric, Gas stove(s), Dishwasher, Dryer, Microwave, Hood Fan

Flooring

Hardwood, Carpeted

Basement Features

Finished, Full

Basement Type

Finished, Full

Building Features
Features

Closet Organizers, No Animal Home, No Smoking Home

Foundation Type

Poured Concrete

Architectural Style

Construction Material

Wood frame

Floor Space
1790.00Sq.Ft.
Total Finished Area
1790.00Sq.Ft.
Structures
Vinyl siding
Heating & Cooling
Cooling
Central air conditioning
Fireplace
Heating Type
Natural gas, Central heating, Other
Exterior Features
Exterior Finish
Vinyl siding
Neighbourhood Features
Amenities Nearby
 
 
Parking Type
Attached Garage, Concrete
Total Parking Spaces
4
Interested in this property?
Kuldip Singh Parmar
Kuldip Singh Parmar
Associate
Balpreet Tehri
Balpreet Tehri
Associate
Have a question or just want to learn a bit more about the property? That's what I'm here for! Would you like me to send you more information.
By using our site, you agree to our Terms of use and Privacy Policy     Dismiss