$475,500
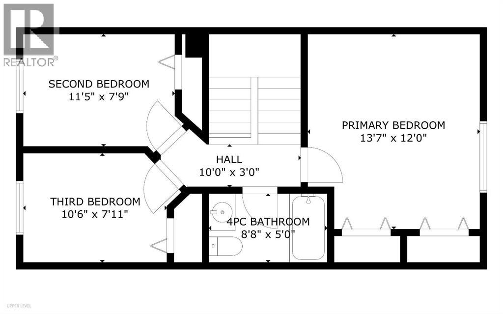
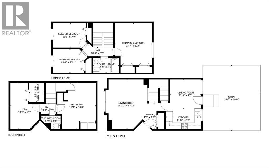
3 beds 2 baths
1084 Sq.Ft.
150 Martinbrook Road NE, Martindale, Calgary, Alberta, T3J3E3
MLS® Number: A2285710

Single Family House for Sale in Martinbrook Road NE Martindale Calgary

Property Information

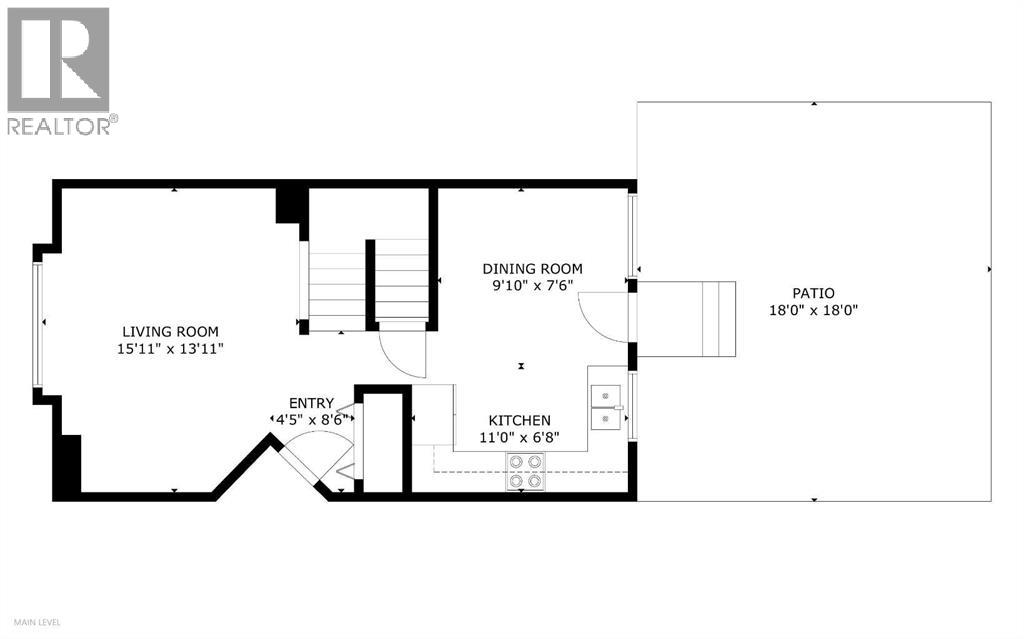
Welcome to your “I am Home” feeling. A wonderful single detached home to reside or as an investment property. The floor plan has a wide living and kitchen space designed for easy accessibilities. The bathroom layout is for easy access in the 2nd and lower level. Your dining area and kitchen are meant for you to enjoy or entertain and see your children play in your very own private backyard. Your backyard with a deck has plenty of space for entertainment and get together with your friends and family. Your garage is a mechanic dream, there is enough space for your cars, toys, and work benches. Your roof was partially completed in 2021. All the windows were replaced in 2018. The garage was rebuilt in 2019. New hooded microwave, washer, back deck built, stove/oven, shed, and gazebo were installed in 2024. The side and back fence were replaced in 2024, along with the gates. The Martindale Community is minutes away from major amenities such as bus stops and train stations, shopping and grocery centres, restaurants, religious and cultural centres, schools, and many more. What are you waiting for? It’s time for you to move into your home. (id:50315)

Property Summary
Property Type

Single Family

Building Type

Storey

2

Community Name

Subdivision Name

Martindale

Title

 

Land Size
1084Sq.Ft.
Built in
1989
Annual Property Taxes
$3185
Parking Type
Detached Garage, Parking Pad
Published
15 days
Building
Bedrooms
Total
3
Below Grade
 
Bathrooms
Total
2
Partial
0
Interior Features
Appliances Included

Refrigerator, Range - Electric, Microwave Range Hood Combo, Garage door opener, Washer & Dryer

Flooring

Laminate, Carpeted, Vinyl Plank

Basement Features

Finished, Full

Basement Type

Finished, Full

Building Features
Features

See remarks, Back lane, No Animal Home, No Smoking Home

Foundation Type

Poured Concrete

Architectural Style

Construction Material

Wood frame

Floor Space
1084.00Sq.Ft.
Total Finished Area
1084.00Sq.Ft.
Structures
Heating & Cooling
Cooling
None
Fireplace
Heating Type
Forced air, Natural gas
Exterior Features
Exterior Finish
Neighbourhood Features
Amenities Nearby
 
 
Parking Type
Detached Garage, Parking Pad
Total Parking Spaces
3
Interested in this property?
Kuldip Singh Parmar
Kuldip Singh Parmar
Associate
Balpreet Tehri
Balpreet Tehri
Associate
Have a question or just want to learn a bit more about the property? That's what I'm here for! Would you like me to send you more information.
By using our site, you agree to our Terms of use and Privacy Policy     Dismiss