$589,524
3 beds 3 baths
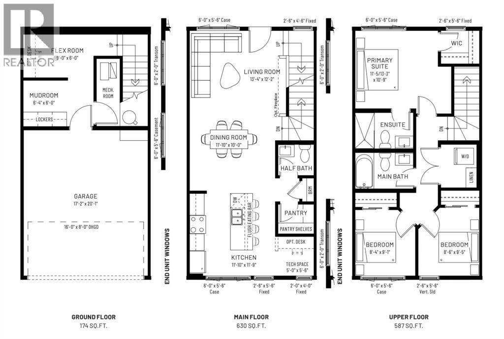
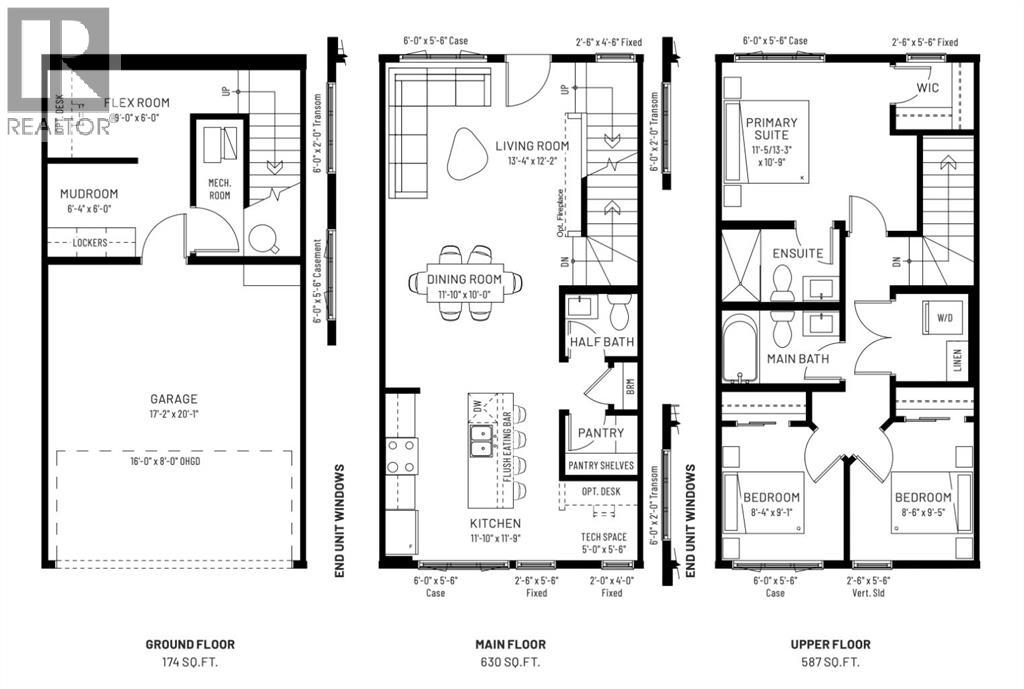
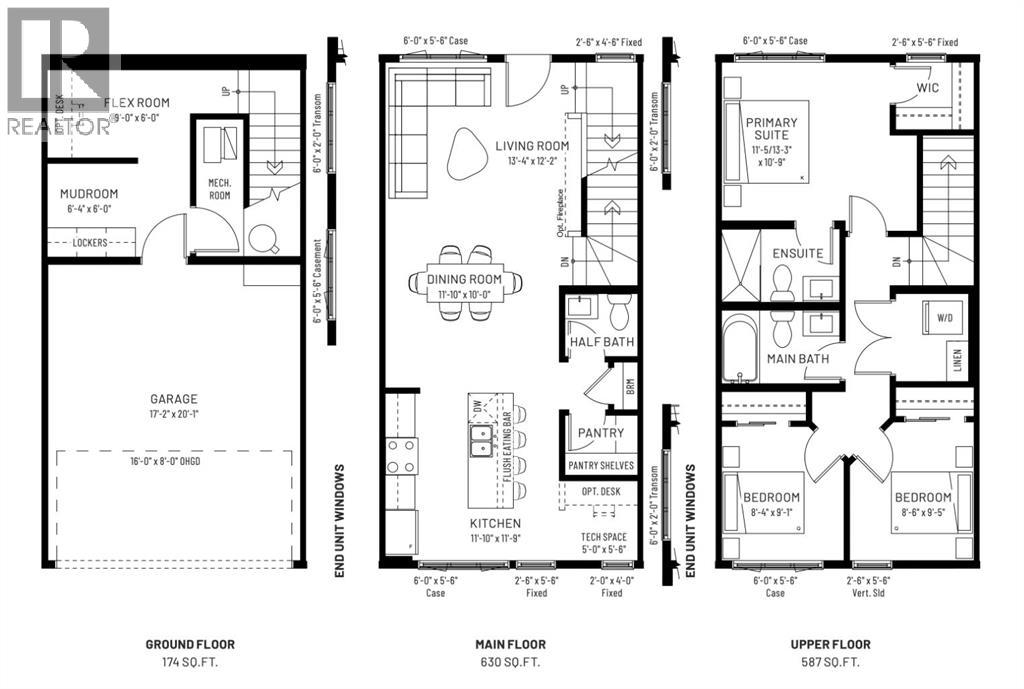
1260 Sq.Ft.
147 Arbour Lake Court NW, Arbour Lake, Calgary, Alberta, T3G2L4
MLS® Number: A2261665

Single Family House for Sale in Arbour Lake Court NW Arbour Lake Calgary

Property Information

**Open House Sunday 2pm to 4pm - PLEASE GO TO THE SHOWHOME FOR ACCESS** Step into a new chapter of life with the Metro Tailored Tiered 18, a canvas for your dreams and aspirations. Whether you're embarking on a career, venturing into homeownership, or seeking to right-size, this townhome offers affordability and flexibility, opening doors to endless possibilities. Experience the true essence of homeownership with three floors of living space, oversized windows, beautiful finishes and an awesome location this townhome sets the stage for your next chapter. Indulge in the thoughtful features, from the spacious patio and expansive kitchen island to the versatile corner flex area and convenient upper floor laundry facilities. With three bedrooms, ample storage space, and a double car garage, this townhome is designed to meet the needs of modern living while allowing you to create your masterpiece. Located in one of Calgary’s Best neighbourhoods Arbour Lake has is it all! A pristine lake brimming with rainbow trout, neighbourhood parks, spectacular mountain views, a regional bike and walkway path carved through rolling hills. Swimming, boating, fishing, ice skating, community events and much more. Your activities are only limited by your imagination. As Northwest Calgary’s only lake community, Arbour Lake offers a quality of living that is truly unparalleled. Photos are representative of the property being built. (id:50315)

Property Summary
Property Type

Single Family

Building Type

Storey

3

Community Name

Lake Privileges, Pets Allowed

Subdivision Name

Arbour Lake

Title

 

Land Size
1260Sq.Ft.
Built in
2025
Annual Property Taxes
$
Parking Type
Attached Garage
Published
169 days
Building
Bedrooms
Total
3
Below Grade
 
Bathrooms
Total
3
Partial
1
Interior Features
Appliances Included

Refrigerator, Dishwasher, Stove, Microwave Range Hood Combo

Flooring

Carpeted, Vinyl Plank

Basement Features

None

Basement Type

None

Building Features
Features

See remarks, Parking

Foundation Type

Poured Concrete

Architectural Style

Construction Material

Wood frame

Floor Space
1260.00Sq.Ft.
Total Finished Area
1260.00Sq.Ft.
Structures
Heating & Cooling
Cooling
See Remarks
Fireplace
Heating Type
Forced air
Exterior Features
Exterior Finish
Neighbourhood Features
Amenities Nearby
 
 
Parking Type
Attached Garage
Total Parking Spaces
2
Interested in this property?
Kuldip Singh Parmar
Kuldip Singh Parmar
Associate
Balpreet Tehri
Balpreet Tehri
Associate
Have a question or just want to learn a bit more about the property? That's what I'm here for! Would you like me to send you more information.
By using our site, you agree to our Terms of use and Privacy Policy     Dismiss