$349,950
1 beds 1 baths
635 Sq.Ft.
1401, 225 11 Avenue SE, Beltline, Calgary, Alberta, T2G0G3
MLS® Number: A2214977

Single Family House for Sale in Avenue SE Beltline Calgary

Property Information

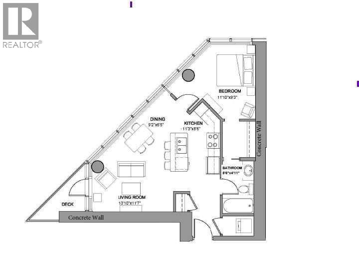
Click brochure link for more details. CALGARY TOWER VIEW, PENTHOUSE LEVEL PARKING, HIGH END, UPGRADED, GLASS FLOOR TO CEILING WRAP AROUD WINDOWS, CORNER unit (this not a typical 1 bedroom) in prestigious KEYNOTE 2 premier apartment residences, situated in the highly sought after downtown location of VICTORIA PARK and within the walk-zone to Calgary core amenities. This executive upgraded unit has the best PARKING on P1 level which will save 20-30 minutes every day to get to/from parkade while saving your car longevity not going over the parkade speed bumps and same level titled oversized storage. Unit offers exceptional privacy and tranquility compared to other buildings in downtown thanks to its ALL-CONCRETE construction, including shared walls. Its unique ALL-GLASS EXTERIOR sets it apart, making it a standout building in Calgary's skyline. The OPEN-CONCEPT LAYOUT is designed for comfort and style, this unit boasts 9' ceiling with WRAP AROUND FULL FLOOR TO CEILING WINDOWS with BLINDS at your fingertip to close/open at your convenience and enjoy spectacular views of Calgary Tower. It is well planned one bedroom walk-in/walk through closet, entrance/exit from both bedroom and bathroom, not like any other layouts and one full bath, ceiling-height kitchen with European cabinetry, GRANITE counter-tops, center island, engineered hardwood floors and “Samsung” stainless appliances. Enjoy the ease of in-suite laundry and the comfort of central AIR CONDITIONING, ensuring a perfect indoor climate year-round.This unit like no others has UPGRADES: P1/Level1 Parking right at the entrance of the parkade, oversized titled storage, “VOVO” smart toilet, smart touchless faucets in the kitchen and bathroom, rain shower, large, matte black sink in the bathroom, new modern lighting fixtures in the kitchen, living room and bathroom, “InSinkErator” Garbage Disposal, countertop soap dispenser, has professionally drilled hole in the countertop to install water filtration like Reverse Osmosis and a new “Samsung” Glass Touch LED microwave. The adjoining living room can accommodate full-size furniture and leads to the balcony where you can enjoy your morning coffee while watching the sun rise or sipping glass of wine watching lights of Calgary Tower in the evening.This air-conditioned complex has keyless main entry and a newly installed high security system. Keynote 2 boasts an array of exceptional amenities that cater to an active and social lifestyle. Stay fit in one of the 2 the state-of-the-art fitness centers or unwind in the owner's lounge complete with a large TV, pool table, kitchen and wet bar. Furnished guest suites, 24-hour security with surveillance cameras, and secured elevator access. The building also features a Plus-15 rooftop patio with outdoor space and BBQs, perfect for summer gatherings and relaxing with friends. Residents enjoy the convenience of full-time onsite management, secured elevator access, a guest room for visiting friends and family, two bike rooms. (id:50315)

Property Summary
Property Type

Single Family

Building Type

Storey

29

Community Name

Pets Allowed

Subdivision Name

Beltline

Title

 

Land Size
635Sq.Ft.
Built in
2013
Annual Property Taxes
$1877
Parking Type
Underground
Published
340 days
Building
Bedrooms
Total
1
Below Grade
 
Bathrooms
Total
1
Partial
0
Interior Features
Appliances Included

See remarks

Flooring

Hardwood, Carpeted

Basement Features

Basement Type

Building Features
Features

Closet Organizers, No Animal Home, No Smoking Home, Guest Suite

Foundation Type

Architectural Style

Construction Material

Poured concrete

Floor Space
635.00Sq.Ft.
Total Finished Area
635.00Sq.Ft.
Structures
Concrete
Heating & Cooling
Cooling
Central air conditioning
Fireplace
Heating Type
Forced air
Exterior Features
Exterior Finish
Concrete
Neighbourhood Features
Amenities Nearby
 
 
Parking Type
Underground
Total Parking Spaces
1
Interested in this property?
Kuldip Singh Parmar
Kuldip Singh Parmar
Associate
Balpreet Tehri
Balpreet Tehri
Associate
Have a question or just want to learn a bit more about the property? That's what I'm here for! Would you like me to send you more information.
By using our site, you agree to our Terms of use and Privacy Policy     Dismiss