$549,900
3 beds 3 baths
1723 Sq.Ft.
135 Creekview Gardens SW, Pine Creek, Calgary, Alberta, T2X5X7
MLS® Number: A2267959

Single Family House for Sale in Creekview Gardens SW Pine Creek Calgary

Property Information

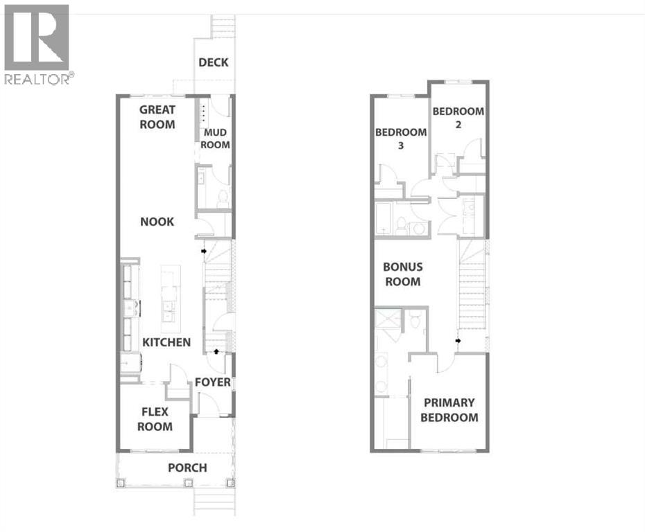
Where elevated design meets everyday ease, this is the home that will transform your routine into a retreat. Nestled in the dynamic and nature-rich community of CreekView, this Columbia 18 model by Cedarglen Homes is more than just a layout - it’s a lifestyle. From the first step inside, you’re welcomed by a sense of openness and warmth, as natural light floods the main living space, drawing you toward the expansive great room anchored at the back of the home. The heart of the home is the kitchen crafted for connection and elevated with two toned cabinetry, striking quartz countertops, designer hardware, and long subway tile backsplash. Whether you’re brewing coffee at the oversized island or entertaining guests for dinner, the space blends beauty and function seamlessly. Plus, with a $6250 appliance allowance, your kitchen can be tailored to match your personal style. Need a quiet space to work or play? A main floor flex room tucked at the front of the home offers just that - perfect as a home office, creative nook, or cozy playroom. Upstairs, the central bonus room brings the family together for movie marathons or game nights, while still offering a touch of separation between the bedrooms. The primary suite is your personal haven, spacious enough for king-sized furnishings and styled with a spa-inspired ensuite complete with double vanities, a tiled walk-in shower, and a generous walk-in closet. Two additional bedrooms, a chic full bathroom, and a dedicated laundry room complete the upper level with both style and practicality. The unfinished basement offers endless potential with a separate entrance and rough-ins completed for a legal suite (city approval and permits required). Whether you envision a rental suite, home gym, or entertainment area, this space is ready for your creativity. Outside, the brand-new backyard deck with a BBQ gas line is perfect for summer gatherings, and the $2,000 landscaping credit ensures you can personalize your front yard within th e first year of ownership. Located in the picturesque CreekView community, this home provides the perfect balance of nature and convenience. Enjoy easy access to Township and Shawnessy Shopping Centres, Sirocco Golf Club, and scenic walking paths, all while being surrounded by lush green spaces. This is the perfect place to call home. Don’t miss out - book your private showing today! *Some photos are virtually staged.* (id:50315)

Property Summary
Property Type

Single Family

Building Type

Storey

2

Community Name

Subdivision Name

Pine Creek

Title

 

Land Size
1723Sq.Ft.
Built in
2025
Annual Property Taxes
$
Parking Type
Parking Pad, Other
Published
days
Building
Bedrooms
Total
3
Below Grade
 
Bathrooms
Total
3
Partial
1
Interior Features
Appliances Included

See remarks

Flooring

Tile, Carpeted, Vinyl Plank

Basement Features

Unfinished, Full, Separate entrance

Basement Type

Unfinished, Full, Separate entrance

Building Features
Features

Back lane, No Animal Home, No Smoking Home, Gas BBQ Hookup

Foundation Type

Poured Concrete

Architectural Style

Construction Material

Floor Space
1723.00Sq.Ft.
Total Finished Area
1723.00Sq.Ft.
Structures
Brick, Vinyl siding
Heating & Cooling
Cooling
None
Fireplace
Heating Type
Exterior Features
Exterior Finish
Brick, Vinyl siding
Neighbourhood Features
Amenities Nearby
 
 
Parking Type
Parking Pad, Other
Total Parking Spaces
2
Interested in this property?
Kuldip Singh Parmar
Kuldip Singh Parmar
Associate
Balpreet Tehri
Balpreet Tehri
Associate
Have a question or just want to learn a bit more about the property? That's what I'm here for! Would you like me to send you more information.
By using our site, you agree to our Terms of use and Privacy Policy     Dismiss