$2,199,000
5 beds 4 baths
2771 Sq.Ft.
120 8 Avenue NW, Crescent Heights, Calgary, Alberta, T2M0A4
MLS® Number: A2291389

Single Family House for Sale in Avenue NW Crescent Heights Calgary

Property Information

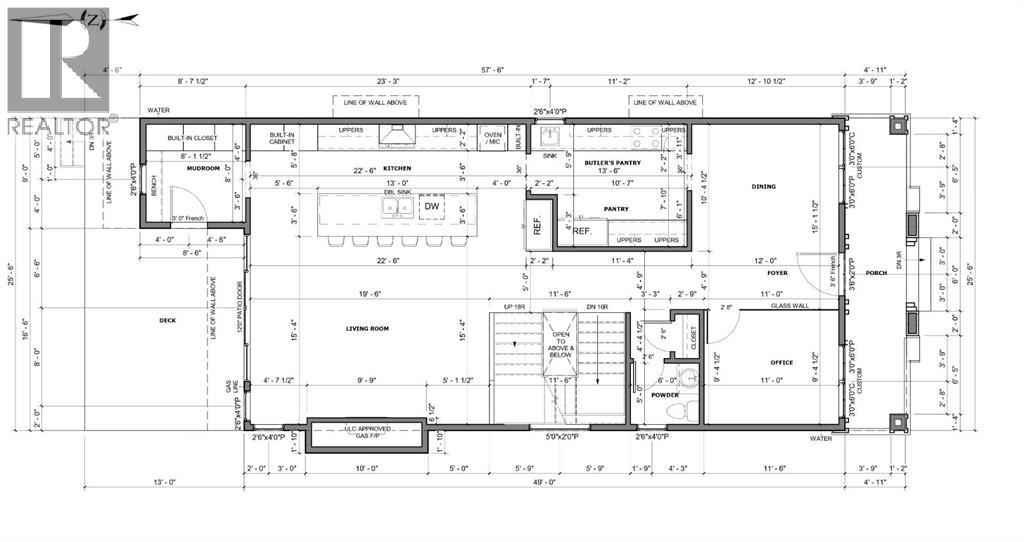
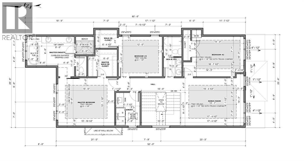
The Ultimate Inner-City Location – Steps from Crescent Park! Enjoy life just moments from tennis and basketball courts, a skating rink, playground, curling rink, and two baseball diamonds. Tucked away behind Crescent Road in a quiet setting, this home is within walking distance to downtown, Prince’s Island, St. Patrick’s Island, and the Bow River pathways. Bordering Rosedale, it offers stunning city, river, and mountain views.This custom-built 5-bedroom home boasts over 4,200 sq. ft. of luxurious living space, blending timeless design with modern comfort. Featuring 10’ceilings in basement and main floor and 9’ ceilings on upper floor with all rooms having tray ceilings, a massive chef’s kitchen with quartz counters and a butler’s pantry, high end JENN AIR appliances, black triple pane high efficiency windows, the open-concept layout flows seamlessly into the elegant living room with fireplace and French doors leading to a beautiful backyard oasis. The main floor also includes a spacious office and a formal dining room with city views. Upstairs, enjoy a bonus room, two additional bedrooms, and a private master retreat with barrel ceilings, fireplace, city views, a spa-like 5-piece en-suite, and a walk-in closet. The upstairs laundry adds extra convenience. The fully finished lower level features a media room, bar, gym, wine cellar, two more bedrooms, and a custom 4-piece bath—perfect for family or guests. This is truly a rare find in one of Calgary’s most desirable inner-city locations. (id:50315)

Property Summary
Property Type

Single Family

Building Type

Storey

2

Community Name

Subdivision Name

Crescent Heights

Title

 

Land Size
2771Sq.Ft.
Built in
2026
Annual Property Taxes
$0
Parking Type
Detached Garage, Other
Published
14 days
Building
Bedrooms
Total
5
Below Grade
 
Bathrooms
Total
4
Partial
1
Interior Features
Appliances Included

Refrigerator, Range - Gas, Dishwasher, Microwave, Freezer, Oven - Built-In, Garage door opener, Washer & Dryer, Water Heater - Gas

Flooring

Hardwood, Carpeted, Ceramic Tile

Basement Features

Finished, Full

Basement Type

Finished, Full

Building Features
Features

Back lane

Foundation Type

Poured Concrete

Architectural Style

Construction Material

Wood frame

Floor Space
2771.00Sq.Ft.
Total Finished Area
2771.00Sq.Ft.
Structures
Brick, Stucco
Heating & Cooling
Cooling
Central air conditioning
Fireplace
Heating Type
Forced air, Natural gas
Exterior Features
Exterior Finish
Brick, Stucco
Neighbourhood Features
Amenities Nearby
 
 
Parking Type
Detached Garage, Other
Total Parking Spaces
2
Interested in this property?
Kuldip Singh Parmar
Kuldip Singh Parmar
Associate
Balpreet Tehri
Balpreet Tehri
Associate
Have a question or just want to learn a bit more about the property? That's what I'm here for! Would you like me to send you more information.
By using our site, you agree to our Terms of use and Privacy Policy     Dismiss