$389,000
2 beds 2 baths
701 Sq.Ft.
111, 323 20 Avenue SW, Mission, Calgary, Alberta, T2S2G5
MLS® Number: A2294815

Single Family House for Sale in Avenue SW Mission Calgary

Property Information

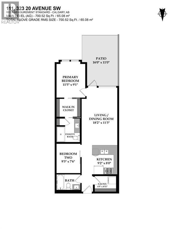
Courtyard Oasis! One of the standout features of this home is its rare ground-level location, offering a spacious private patio that feels like your own backyard. The fully fenced courtyard, complete with raised garden beds, opens directly onto a beautifully landscaped and secured green space. With two private gated access points, coming and going is effortless - ideal for pet owners, entertaining, or simply enjoying seamless indoor-outdoor living in a setting that feels far removed from condo life. The patio also includes a natural gas BBQ. Inside, 9’ ceilings and a well-designed open layout create a bright and spacious feel. The U-shaped kitchen is finished with quartz countertops, LED accent lighting, and a full suite of appliances including a four-burner gas cooktop, built-in oven, microwave hood fan, two-drawer dishwasher, and garburator. Quartz countertops continue throughout the bathrooms, complemented by motion-sensor LED lighting and modern finishes. The primary bedroom comfortably accommodates a king-size bed and features a walk-through closet leading to a well-appointed ensuite with space-saving pocket doors and excellent storage. A second bedroom, thoughtfully positioned away from the primary, is ideally suited as a den or home office, while still offering flexibility for bedroom use. In-suite laundry with washer and dryer completes the interior. Additional highlights include a heated underground parking stall with an assigned storage unit, secure bike storage, a car wash bay, and free underground visitor parking. The building is pet-friendly and exceptionally well suited for dog owners. Mission is tough to beat. Located in one of Calgary’s most walkable and vibrant inner-city communities, this ground-level, south-facing Mission condo offers an exceptional combination of modern design, thoughtful layout, and an unbeatable lifestyle. Just steps from the Elbow River pathways, MNP Sport Centre, restaurants, cafés, fitness studios, and everyday amenities, th is home truly puts the best of Mission at your doorstep. Whether you value walking to grocery stores, natural food markets, boutique shops, tennis courts, the public library, or some of the city’s best dining and entertainment, this location delivers true inner-city convenience. Modern comfort, rare outdoor space, and an exceptional location! (id:50315)

Property Summary
Property Type

Single Family

Building Type

Storey

4

Community Name

Pets Allowed With Restrictions

Subdivision Name

Mission

Title

 

Land Size
701Sq.Ft.
Built in
2014
Annual Property Taxes
$2292
Parking Type
Underground
Published
13 days
Building
Bedrooms
Total
2
Below Grade
 
Bathrooms
Total
2
Partial
0
Interior Features
Appliances Included

Washer, Refrigerator, Cooktop - Gas, Dishwasher, Dryer, Microwave Range Hood Combo, Oven - Built-In, Window Coverings

Flooring

Tile, Laminate, Carpeted

Basement Features

Basement Type

Building Features
Features

Elevator, Gas BBQ Hookup, Parking

Foundation Type

Architectural Style

Construction Material

Wood frame

Floor Space
701.00Sq.Ft.
Total Finished Area
701.00Sq.Ft.
Structures
Brick, Metal, Composite Siding
Heating & Cooling
Cooling
None
Fireplace
Heating Type
Baseboard heaters, Natural gas
Exterior Features
Exterior Finish
Brick, Metal, Composite Siding
Neighbourhood Features
Amenities Nearby
 
 
Parking Type
Underground
Total Parking Spaces
1
Interested in this property?
Kuldip Singh Parmar
Kuldip Singh Parmar
Associate
Balpreet Tehri
Balpreet Tehri
Associate
Have a question or just want to learn a bit more about the property? That's what I'm here for! Would you like me to send you more information.
By using our site, you agree to our Terms of use and Privacy Policy     Dismiss