$699,000
3 beds 3 baths
2141 Sq.Ft.
109 Corner Glen Green NE, Cornerstone, Calgary, Alberta, T3N2P7
MLS® Number: A2291705

Single Family House for Sale in Corner Glen Green NE Cornerstone Calgary

Property Information

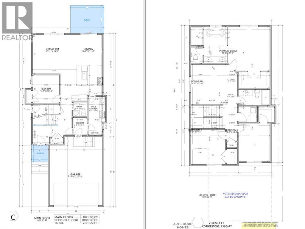
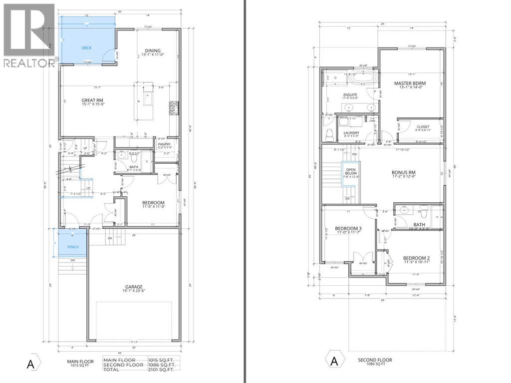
Stop settling for "almost perfect" and start building your dream. This is a rare opportunity to SECURE A PREMIUM, OVERSIZED PIE-SHAPED LOT IN THE VIBRANT COMMUNITY OF CORNERSTONE. With an IMPRESSIVE REAR WIDTH OF APPROXIMATELY 57 FEET, you finally have the space to create the sprawling backyard you’ve always wanted. Whether you have a vision from scratch or want a head start, we provide the flexibility to ensure your home fits your lifestyle perfectly. START WITH OUR POPULAR PRE-PLANNED MODELS AND MODIFY THEM TO SUIT YOUR FAMILY’S SPECIFIC NEEDS. All our pre-planned options already feature popular and much needed Main Floor Bedroom and Full Bathroom, Upstairs Bonus Room and customizations can be done to include Spice Kitchen, Front Facing Bonus Room and much more! THIS LOT IS JUST WALKING DISTANCE TO AN EXISTING PLAYGROUND and a few minutes from the future school site and the upcoming community recreation center. Cornerstone offers an effortless access to Country Hills Blvd and Stoney Trail, keeping the rest of Calgary within easy reach. Discuss with us about your need for a finished basement legal suite (subject to permits and City of Calgary approval). Don't miss this opportunity of building your dream home on a not so commonly available pie-shaped lot. (id:50315)

Property Summary
Property Type

Single Family

Building Type

Storey

2

Community Name

Subdivision Name

Cornerstone

Title

 

Land Size
2141Sq.Ft.
Built in
2026
Annual Property Taxes
$1433
Parking Type
Attached Garage
Published
12 days
Building
Bedrooms
Total
3
Below Grade
 
Bathrooms
Total
3
Partial
1
Interior Features
Appliances Included

Washer, Refrigerator, Range - Electric, Dishwasher, Dryer, Microwave Range Hood Combo

Flooring

Carpeted, Ceramic Tile, Vinyl Plank

Basement Features

Unfinished, Full, Separate entrance

Basement Type

Unfinished, Full, Separate entrance

Building Features
Features

Other, No Animal Home, No Smoking Home, Gas BBQ Hookup

Foundation Type

Poured Concrete

Architectural Style

Construction Material

Poured concrete, Wood frame

Floor Space
2141.00Sq.Ft.
Total Finished Area
2141.00Sq.Ft.
Structures
Concrete, Stone, Vinyl siding
Heating & Cooling
Cooling
None
Fireplace
Heating Type
Natural gas, Central heating
Exterior Features
Exterior Finish
Concrete, Stone, Vinyl siding
Neighbourhood Features
Amenities Nearby
 
 
Parking Type
Attached Garage
Total Parking Spaces
4
Interested in this property?
Kuldip Singh Parmar
Kuldip Singh Parmar
Associate
Balpreet Tehri
Balpreet Tehri
Associate
Have a question or just want to learn a bit more about the property? That's what I'm here for! Would you like me to send you more information.
By using our site, you agree to our Terms of use and Privacy Policy     Dismiss