$234,500
2 beds 1 baths
747 Sq.Ft.
103, 1836 12 Avenue SW, Sunalta, Calgary, Alberta, T3C0Z9
MLS® Number: A2246748

Single Family House for Sale in Avenue SW Sunalta Calgary

Property Information

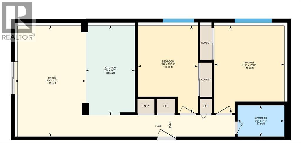
This bright and beautifully updated 2-bedroom condo offers the perfect blend of comfort, convenience, and location. Enjoy a sunny south-facing patio that’s fully surrounded by a lush, mature hedge—creating your own private outdoor retreat right in the city. As an end unit, this home is filled with natural light from extra windows and offers a greater sense of privacy with fewer shared walls.Inside, you’ll love the open-concept layout with laminate flooring throughout, a spacious living area, and a kitchen made for entertaining with a large island that seats up to four. The espresso cabinetry, stainless steel appliances, and upgraded lighting bring a modern touch to the space.Both bedrooms are generously sized, each with double closets, and the bathroom features a deep soaker tub, tiled surround, and updated finishes. Enjoy the convenience of in-suite laundry with a combo washer/dryer and your own assigned parking stall just steps from the back door.Located in one of Calgary’s most walkable neighborhoods — you’re just minutes to 17th Avenue’s shops, cafés, and restaurants, the Sunalta LRT, and have quick access to downtown.Whether you’re a first-time buyer, investor, or looking to simplify your lifestyle, this Sunalta gem checks all the boxes. (id:50315)

Property Summary
Property Type

Single Family

Building Type

Storey

4

Community Name

Pets Allowed With Restrictions

Subdivision Name

Sunalta

Title

 

Land Size
747Sq.Ft.
Built in
1978
Annual Property Taxes
$1514
Parking Type
Published
119 days
Building
Bedrooms
Total
2
Below Grade
 
Bathrooms
Total
1
Partial
0
Interior Features
Appliances Included

Refrigerator, Dishwasher, Stove, Washer & Dryer

Flooring

Laminate, Ceramic Tile

Basement Features

Basement Type

Building Features
Features

See remarks

Foundation Type

Architectural Style

Construction Material

Wood frame

Floor Space
747.00Sq.Ft.
Total Finished Area
747.00Sq.Ft.
Structures
Stucco
Heating & Cooling
Cooling
None
Fireplace
Heating Type
Baseboard heaters
Exterior Features
Exterior Finish
Stucco
Neighbourhood Features
Amenities Nearby
 
 
Parking Type
Total Parking Spaces
1
Interested in this property?
Kuldip Singh Parmar
Kuldip Singh Parmar
Associate
Balpreet Tehri
Balpreet Tehri
Associate
Have a question or just want to learn a bit more about the property? That's what I'm here for! Would you like me to send you more information.
By using our site, you agree to our Terms of use and Privacy Policy     Dismiss