$959,900
4 beds 4 baths
1675 Sq.Ft.
101, 625 2 Avenue NW, Sunnyside, Calgary, Alberta, T2N0E2
MLS® Number: A2277154

Single Family House for Sale in Avenue NW Sunnyside Calgary

Property Information

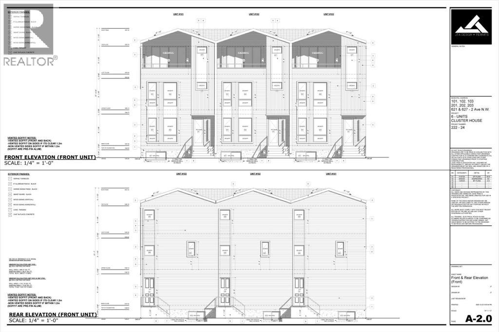
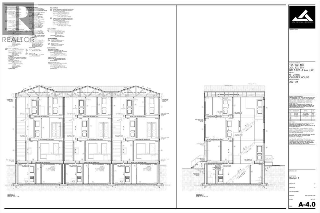
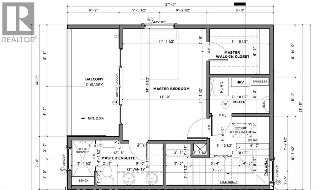
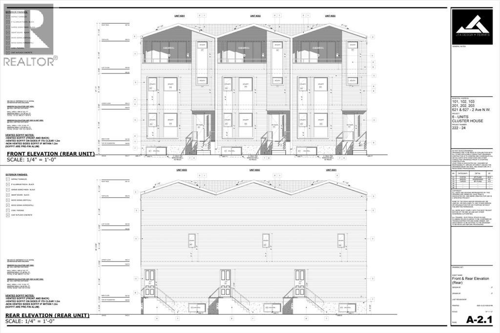
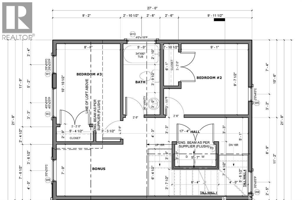
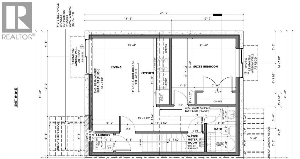
BRAND NEW FRONT FACING END-UNIT TOWNHOME | OUTSTANDING SUNNYSIDE INNER-CITY LOCATION | 3 STOREYS ABOVE GRADE | PRIVATE PRIMARY RETREAT WITH BALCONY | BONUS ROOM + 3 BEDROOMS | OPEN-CONCEPT MAIN FLOOR | LEGAL 1-BEDROOM BASEMENT SUITE | FIRE-RATED & SOUND-SEPARATED CONSTRUCTION | Brand new and currently under construction, this end-unit inner-city townhome delivers a thoughtfully designed layout paired with a fully self-contained legal basement suite, offering exceptional flexibility for homeowners, investors or multi-generational living. Quality construction, modern design and a highly functional floorplan combine to create a private and low-maintenance urban residence in one of Calgary’s most desirable neighbourhoods. The open-concept main floor is designed as a great-room style living space, seamlessly connecting the kitchen, dining and living areas to support everyday living and entertaining with ease. Designed for everyday usability, the kitchen features modern appliances and generous prep and storage space, while the end-unit position enhances privacy and natural light. The second level features 2 well-proportioned bedrooms, a full 4-piece bathroom, convenient upper-level laundry and a dedicated bonus room ideal for a home office, media space or additional living area. A true owner’s oasis, the entire third level is reserved as a private primary retreat, complete with a large walk-in closet, a luxurious ensuite and a private balcony that creates separation from the rest of the home. The fully developed legal basement suite includes a private entrance, dedicated kitchen, living area, bedroom, full bathroom and in-suite laundry, providing excellent rental potential and true separation between living spaces. Built to current code with fire-rated and sound-separated assemblies and efficient mechanical systems, this property offers peace of mind and long-term durability. Ideally located in the heart of Sunnyside, just steps from boutique shops, acclaimed restaurants, independent cafes, the LRT station, the Bow River pathway system and downtown, this home combines beautiful brand-new construction and a vibrant inner-city lifestyle. (id:50315)

Property Summary
Property Type

Single Family

Building Type

Storey

3

Community Name

Pets Allowed With Restrictions

Subdivision Name

Sunnyside

Title

 

Land Size
1675Sq.Ft.
Built in
2026
Annual Property Taxes
$0
Parking Type
Detached Garage
Published
94 days
Building
Bedrooms
Total
4
Below Grade
 
Bathrooms
Total
4
Partial
1
Interior Features
Appliances Included

See remarks

Flooring

Other

Basement Features

Finished, Full, Separate entrance, Suite

Basement Type

Finished, Full, Separate entrance, Suite

Building Features
Features

See remarks, Back lane, No Animal Home, No Smoking Home, Parking

Foundation Type

Poured Concrete

Architectural Style

Construction Material

Wood frame

Floor Space
1675.00Sq.Ft.
Total Finished Area
1675.00Sq.Ft.
Structures
Brick, Stucco
Heating & Cooling
Cooling
None
Fireplace
Heating Type
Forced air, Natural gas
Exterior Features
Exterior Finish
Brick, Stucco
Neighbourhood Features
Amenities Nearby
 
 
Parking Type
Detached Garage
Total Parking Spaces
1
Interested in this property?
Kuldip Singh Parmar
Kuldip Singh Parmar
Associate
Balpreet Tehri
Balpreet Tehri
Associate
Have a question or just want to learn a bit more about the property? That's what I'm here for! Would you like me to send you more information.
By using our site, you agree to our Terms of use and Privacy Policy     Dismiss