$179,000
 
974 Sq.Ft.
MLS® Number: A2283293

Business for Sale

Property Information

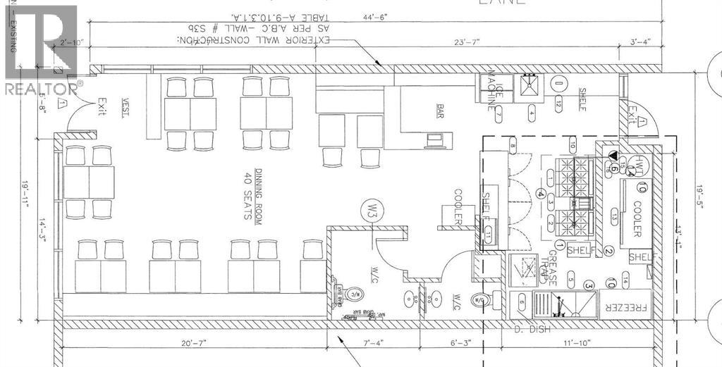
Rare opportunity to acquire a well-established Asian cuisine restaurant in one of Calgary’s most popular outdoor shopping destinations. Located in the heart of the trendy and highly sought-after Marda Loop district, this turnkey business offers excellent visibility, strong foot traffic, and a vibrant dining atmosphere. The space features approximately 974 sq. ft. with 40 seats, creating an inviting ambiance ideal for dine-in, takeout, or delivery concepts. Surrounded by a high-traffic dining and retail corridor, the location benefits from consistent pedestrian flow as well as ample parking at both the front and rear of the property. This is an exceptional opportunity to continue an existing concept or introduce your own food brand in a thriving community known for its strong local support and year-round activity. (id:50315)

Property Summary
Property Type

Business

Building Type

Storey

Community Name

Subdivision Name

Title

 

Land Size
974Sq.Ft.
Built in
1999
Annual Property Taxes
$
Parking Type
Published
66 days
Building
Bedrooms
Total
Below Grade
 
Bathrooms
Total
Partial
Interior Features
Appliances Included

Flooring

Basement Features

Basement Type

Building Features
Features

Foundation Type

Architectural Style

Construction Material

Floor Space
974.00Sq.Ft.
Total Finished Area
974.00Sq.Ft.
Structures
Heating & Cooling
Cooling
Fireplace
Heating Type
Exterior Features
Exterior Finish
Neighbourhood Features
Amenities Nearby
 
 
Parking Type
Total Parking Spaces
Interested in this property?
Kuldip Singh Parmar
Kuldip Singh Parmar
Associate
Balpreet Tehri
Balpreet Tehri
Associate
Have a question or just want to learn a bit more about the property? That's what I'm here for! Would you like me to send you more information.
By using our site, you agree to our Terms of use and Privacy Policy     Dismiss