$85,000
 
1267 Sq.Ft.
MLS® Number: A2279684

Business for Sale

Property Information

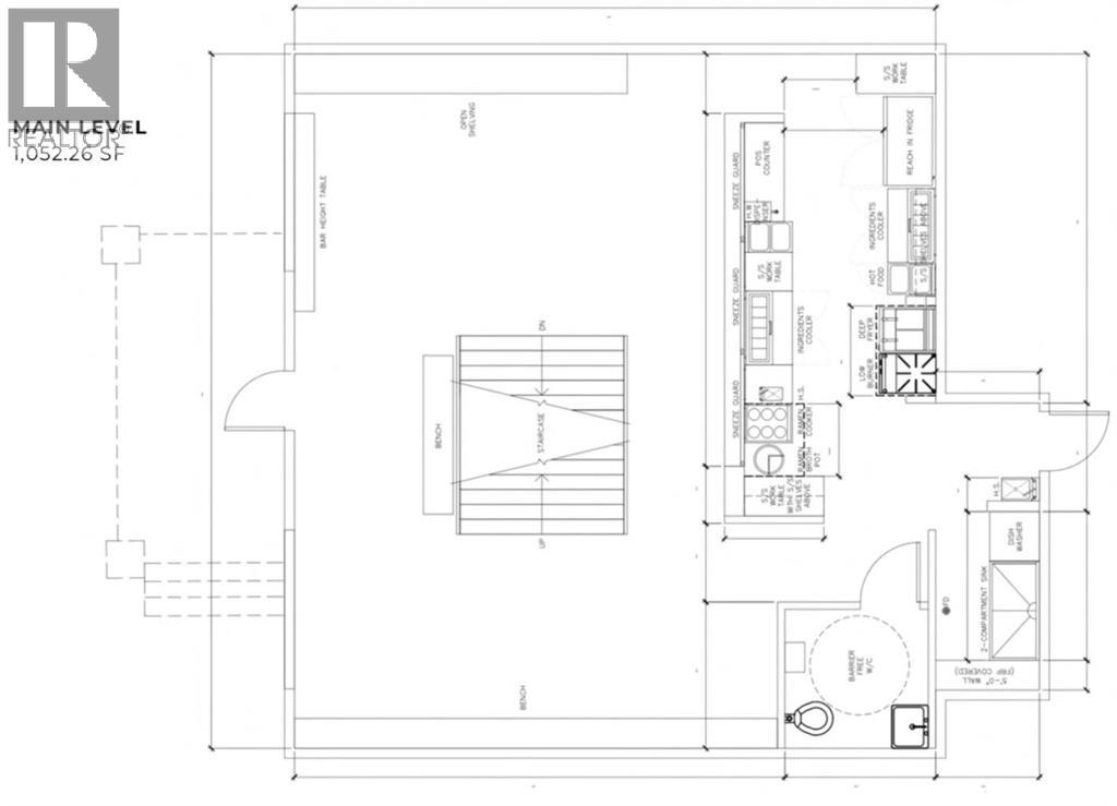
This is an excellent opportunity to acquire a restaurant located in a free-standing building in a prime location, offering strong visibility and easy customer access. The lease runs until February 28, 2031, with a competitive basic rent plus operating costs of $5,000 per month. The space can be converted to other cuisine concepts (please note Japanese cuisine and fried chicken concepts are not permitted). With its standalone presence, favorable lease terms, and flexible use options, this restaurant is well suited for operators seeking strong value in a high-demand area. Size 1,267sf + additional 1,000sf basement. (id:50315)

Property Summary
Property Type

Business

Building Type

Storey

Community Name

Subdivision Name

Title

 

Land Size
1267Sq.Ft.
Built in
2000
Annual Property Taxes
$
Parking Type
Published
84 days
Building
Bedrooms
Total
Below Grade
 
Bathrooms
Total
Partial
Interior Features
Appliances Included

Flooring

Basement Features

Basement Type

Building Features
Features

Foundation Type

Architectural Style

Construction Material

Floor Space
1267.00Sq.Ft.
Total Finished Area
1267.00Sq.Ft.
Structures
Heating & Cooling
Cooling
Fireplace
Heating Type
Exterior Features
Exterior Finish
Neighbourhood Features
Amenities Nearby
 
 
Parking Type
Total Parking Spaces
Interested in this property?
Kuldip Singh Parmar
Kuldip Singh Parmar
Associate
Balpreet Tehri
Balpreet Tehri
Associate
Have a question or just want to learn a bit more about the property? That's what I'm here for! Would you like me to send you more information.
By using our site, you agree to our Terms of use and Privacy Policy     Dismiss